Municipal Healthcare Centres San Blas + Usera + Villaverde – Madrid, Spain
Building: Municipal Healthcare Centres San Blas + Usera + Villaverde
Location: Madrid, Spain
Architect: Estudio Entresitio
Structural Engineer: María José Camporro (architect)
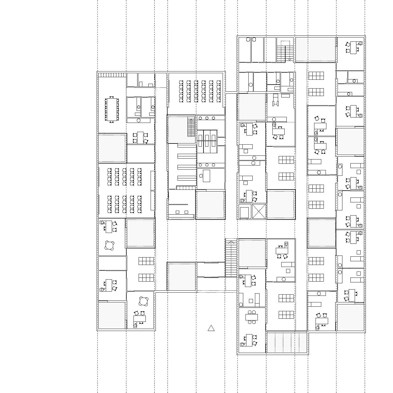
AE Interest: made up of 3 buildings, all have the exact same floor plan, but made of different materials; competition was for San Blas and Usera locations, but had same client, use, and budget; Usera’s façade is made of perforated metal panels with a gold finish, San Blas is concrete cast in horizontal timbers with blue tiles finish, Villaverde is made of a mixture of transparent, translucent, and opaque panels [a]; Villaverde was a separate commission and sits on a separate site; All 3 are mixed use spaces; considered “placeless buildings”; Loose orthogonal grid; Non-stop visual continuity inside each building down long corridors [b]
[a,b]
The Interlace – Singapore
Building: The Interlace
Location: Singapore
Architect: Office of Metropolitan Architecture (OMA)
Landscape Architect: ICN Design International
Structural Engineer: Squire Mech
Structural Engineering Façade: Arup
Project Year: Completed 2013
Size: 170,000 m²
AE Interest: residential; made up of 31 apartment blocks (each 6 stories tall and identical in length) stacked hexagonally around 8 large courtyards; alternative to the usual vertical towers built in tropical environments [a]; shared spaces mixed among private spaces and integrated into nature creates a natural, community feeling [b]
[a,b]
Holland Green – London, UK
Building: Holland Green
Location: London, UK
Architect: Office of Metropolitan Architecture (OMA)
Collaborating Architect: Allies & Morrison
Structural Engineer: Arup
Services Engineer: Arup
Project Year: Completed 2016
Size: 323,000 ft²
AE Interest: made up of residential buildings and one main exhibition hall [a]; Residential buildings – rectilinear geometries, façade is made up of 2 parts: identical vertical windows and a grid-like structural system, height of each building is proportional to surrounding green space; main exhibition hall – “tent in the park”, parabolic roof lines to contrast residential buildings [b]
[a,b]
.















leave a comment