Art Pavilion in Videbaek – Videbaek, Denmark
Building: Art Pavilion in Videbaek
Location: Videbaek, Denmark
Architect: Henning Larsen
Structural Engineer: Jørgen Holm
Construction: 2011- 2012
AE Interests: two seemingly floating plates connected by diagonal members, curtain wall is pulled back from the exterior structure, reminiscent of Japanese tea house as it is situated between a park and a lake, interior illuminated by skylights to allow for flexibility in display arrangements
Articles: [1]
Mill Owners’ Association Building – Ahmedabad, India
Building: Mill Owners’ Association Building
Location: Ahmedabad, India
Architect: Le Corbusier
Completion: 1954
AE Interests: represents Le Corbusier’s proposal for modern Indian architecture, use of brises soleil to prevent sun from reach facade, oriented to allow breeze from river to passively cool building, combines Le Corbusier’s visions of rigidity and curvilinear forms, use of deep perforated walls and exposed concrete
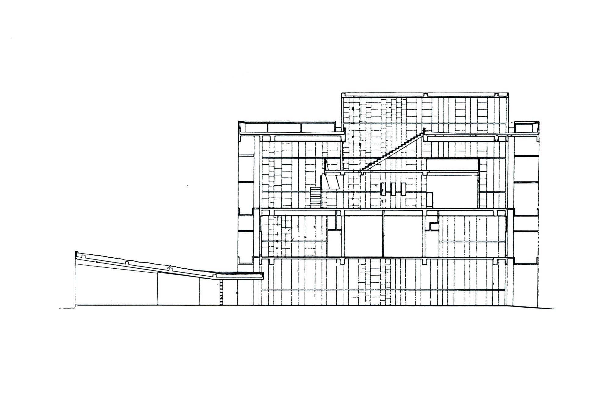
Villa Müller – Prague, Czech Republic
Building: Villa Müller
Location: Prague, Czech Republic
Architect: Adolf Loos
Associate Architect: Karel Lhota
Contractor: Podnikatelství Staveb (Entrepreneurship Buildings)
Landscape Architects: Camillo Schneider, Karl Förster, and Hermann Mattern
Completion: 1930
AE Interests: harmony between modern Functionalism and the classic English style, built on sloping terrain that gives views across the valley of the Vltava with Trója Château, access by staircase that allows visitors to interact with the site, idea that structure is for inhabitants not viewers, application of Raumplan conception of buildings, each room is distinctively finished and has different character, interior colors emphasize use of specific space














leave a comment