Building on the Water-Huai’an City, Jiangsu, China
Name: Building on the Water
Location: Huai’an City, Jiangsu, China
Architects: Alvaro Siza and Carlos Castanheira
Structural Engineers: United Architects & Engineers Co., Ltd
M & E Engineers: Shanghai Qingya Mechanical and Electrical Engineering Co.
Construction: Zhejiang Urban Construction Group
Size: 11,000 sqm
Year: 2014
AE Interest:
-Employs the most advanced manufacturing processes and technologies; designed in a non-linear fashion; built over an artificial lake; aimed at blending the manufacturing process of glass with water (harmony between man and environment); first structure by Siza built over water; built of white exposed concrete; designed to deeply contrast against the orthogonal orderliness of the surrounding factory complex. [1]
[1]
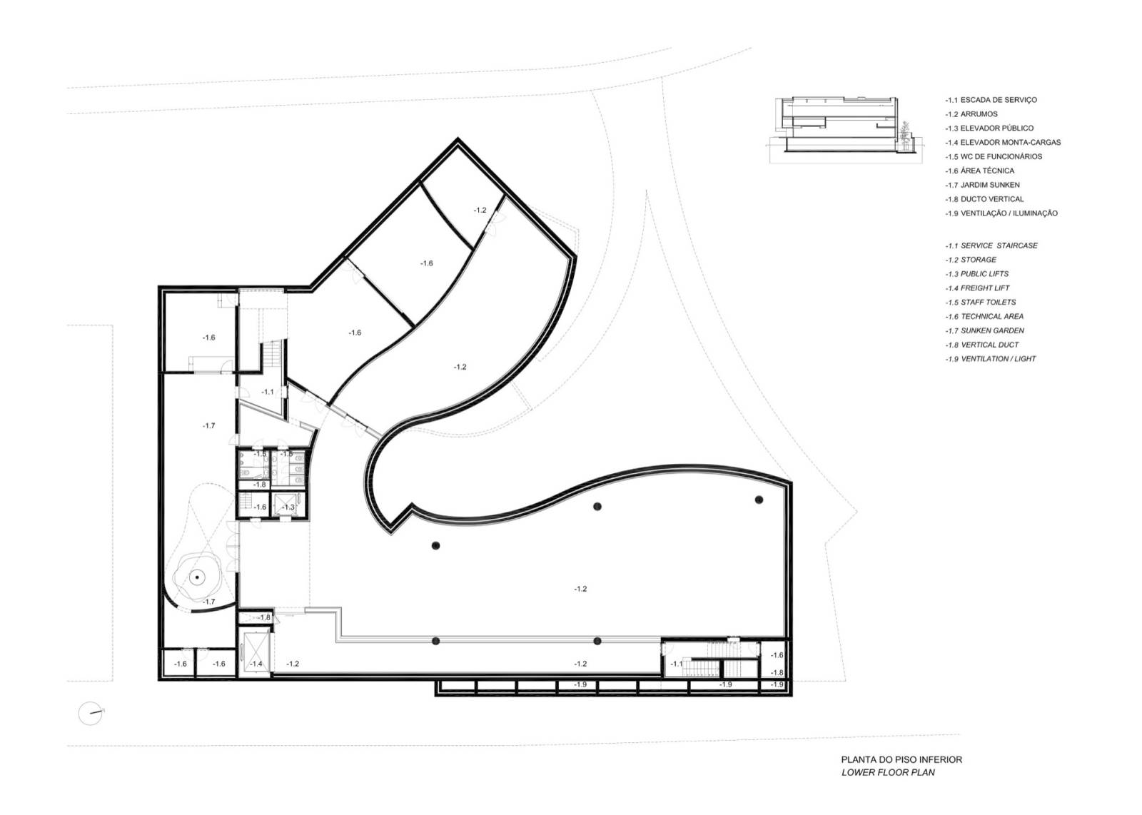
Mimesis Museum- Paju Book City, South Korea
Name: Mimesis Museum
Location: Paju Book City, South Korea
Address: 37.7169266 N,126.6888199 E
Architects: Alvaro Siza, Castanheira & Bastai Arquitectos Associados, and Jun Sung Kim
Collaborators: Chungheon Han, and João Figueiredo
Structural Engineers: Gayoon ENC
M&E Engineers: Hansan Engineering Co.
Construction: Hanool Construction Company
Size: 4,000 sqm
Year: 2009
[1]
AE Interest:
-Built for a book publisher’s private art collection; the concrete form was inspired by a curled up cat; lighting comes from rafted ceilings which counter and contrast the curved walls of the structure [2]; uses a semi-complex marriage between a curved form and a rectilinear form to isolate the interior from the surrounding landscape and to create an open and interactive courtyard.
New Gate of the Alhambra-Granada, Spain
Name: New Gate of the Alhambra
Location: Granada, Spain
Address: 1066 Granada massacre, 18009 Granada, Spain
Architects: Alvaro Siza, and Juan Domingo Santos
Collaborators: Jose Navarro Navarro
Structural Engineers: GOP Engenharia
Industrial Engineering: Abacus Engineers
Size: 5,700 sqm
Year: In Progress
[1]
AE Interest:
-Creates a new entrance to the Palace of Charles V (Alhambra) of Spain; contrasts light and warmth with dark and cold; aimed to disguise the massive building and enhance the castle-fortress [2]; one challenge is how to excavate the land without causing damage to the site itself; the main entrance is located underground and utilizes light-wells to illuminate the interior of the building; designed to blend into the surrounding landscape [3].












leave a comment