Shajing Village Hall – Shenzhen, China
Name: Shajing Village Hall
Location: Oyster Township Lake Park, Bao’an District, Shenzhen, Guangdong, China
Developer: Shenzhen Baoan District Shajing Street Office
General Contractor: China Resources Land Group
Architect: ARCity Office
Structural Engineer: ARCity Office
MEP Engineer: ARCity Office
Technical Consultants: Shanghai Urban Construction Design and Research Institute, Beijing Zhenghe Hengji Waterfront Ecological Environment Management Co.
Landscape Design: Reasonable Fantasy Group INC.
Year of Completion: 2020
AE Interests: sustainable design, adaptive reuse, material preservation and reinforcement, climate adaptation, passive temperature regulation, natural ventilation, insert construction
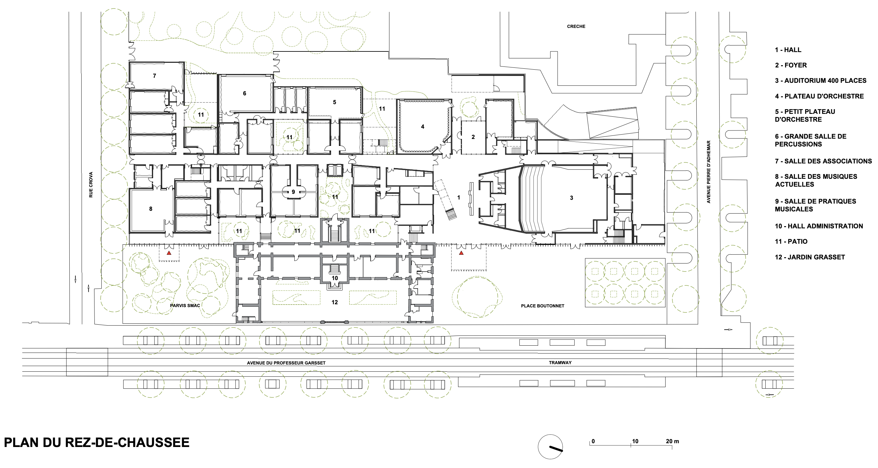
The Music Conservatory of Montpellier – Montpellier, France
Name: The Music Conservatory of Montpellier
Location: 13 Av. du Professeur Grasset, 34090 Montpellier, France
Area: 10000 m2
Developer: Montpellier Méditerranée Métropole, SA3M
General Contractor: Sud Infra Environment
Design Architect: Architecturestudio
Executive Architect: MDR Architectes
Environmental Engineer: Franck Boutté Consultants
Structural engineer: SARL André Verdier Ingénieurs
MEP Engineer: Bet Choulet
Civil Engineer: TKDES
Landscape design: Base
BIM Manager: ACTH
Acoustical Engineer: Acoustique Vivié & Associés (AVA)
Lighting Consultant: 8’18”
Façade Engineer: ACKA
Year of Completion: 2021
AE Interests: interconnected fragmented construction, education building, patios on each floor, suspended gardens, acoustical engineering, photovoltaic panels









leave a comment