Harvard Science and Engineering Complex (SEC) – Boston, Massachusetts, USA
Name: Harvard Science and Engineering Complex (SEC)
Location: 150 Western Avenue, Allston, MA, USA
Design & Executive Architect: Behnisch Architekten
Landscape Architect: Stephen Stimson Associates
General Contractor: Turner Construction Company
Structural Engineer: Buro Happold
Façade Engineer: Knippers Helbig
Climate Engineer: Transsolar
Civil Engineer: Nitsch Engineering
MEP Engineer: Van Zelm Engineers
Geotechnical Engineer: Buro Happold
Completed 2021
AE Interest: World’s first hydroformed stainless-steel façade which cuts back CO2 emissions by ~42%. Air cascade system, heat recovery system and hydronic heating. Steel framework and building materials LBC (Living Building Challenge) “Red List” approved.
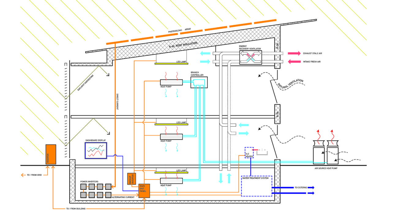
The Kendeda Building for Innovative Sustainable Design – Atlanta, Georgia, USA
Name: The Kendeda Building for Innovative Sustainable Design
Location: 422 Ferst Dr NW, Atlanta, Georgia, USA
Design Architect: The Miller Hull Partnership
Executive Architect: Lord Aeck Sargent, A Katerra Company
Landscape Architect: Andropogon Associates
Structural Engineer: Uzun & Case
MEP Engineer: PAE Engineers and Newcomb & Boyd
Civil Engineer: Long Engineering
Geotechnical Engineer: Professional Services Industries, Inc.
General Contractor: Skanska USA Building Inc.
Completed 2019
AE Interest: One of 28 “living buildings” in the world. 900+ PV panels collect over 100% of building energy usage. Rainwater capture and purification system that provides for building’s water usage. Mass timber structure. Rooftop honeybee apiary and blueberry orchard.









leave a comment