Treet – Bergen, Norway
Building: Treet
Address: Damsgårdsveien 99
Location: Bergen, Norway
Architect: Artec
Structural Engineer: SWECO Norway
Glu-lam and CLT structures: Moelven
Module production: Kodumaja
Completion: 2015
AE Interest: world’s tallest wooden building at 14 stories (as of 2016); load borne by glu-lam trusses with high-capacity connections; high degree of prefabrication, including prefabricated residential modules; CLT in elevator shaft, internal walls, balconies and stairwells
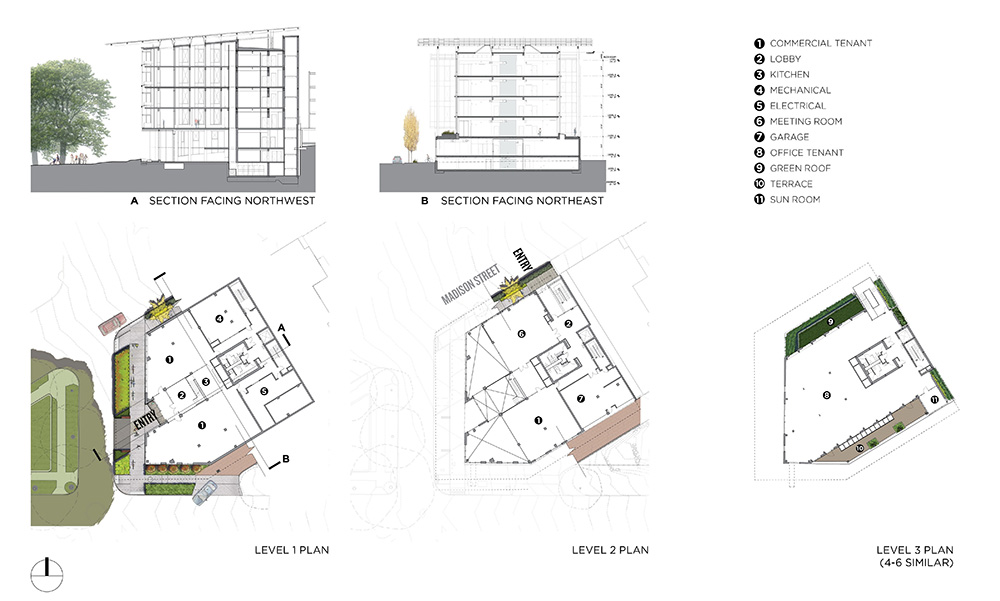
The Bullitt Center – Seattle, Washington
Building: The Bullitt Center
Location: Seattle, Washington
Architect: Miller Hull Partnership
Structural: DCI Engineers
MEP / Sustainability: PAE
Mechanical: PSF Mechanical
General Contractor (core & shell): Schuchart
Client: The Bullitt Foundation
Completion: 2014
AE Interest: Largest net-zero commercial building in US (as of 2016), 250-year life span design, steel/concrete construction on first two levels, glulam and sustainably harvested Douglas fir above 2nd floor, geothermal heating, radiant slabs, heat recovery ventilation, 5 aerobic composers on site, 575 panel solar array, power-generating elevators, greywater reuse, 3rd floor includes constructed wetlands, steel window shading, certified living building
Video: [1]
Full Team, Credits, and Features: [1]
-tp
Soe Ker Tie House – Noh Bo, Tak, Thailand
Building: Soe Ker Tie House
Location: Noh Bo, Tak, Thailand
Architect: TYIN Tegnestue
Client: Ole Jorgen Edna
Completion: 2009
Construction: TYIN Tegnestue, local workers from Noh Bo
Total Budget: $11,500
AE Interest: iron wood structure, foundation of poured concrete and old tires, traditional woven bamboo facades, angled roof provides ventilation and rainwater collection, almost all materials locally sourced, methods taught to local workers to facilitate spread of sustainable building techniques








leave a comment