Centre for Sustainable Chemistry – Nottingham, United Kingdom
Building: Center for Sustainable Chemistry
Location: Nottingham, United Kingdom
Completed: 2017
Architect: Fairhursts Design Group
Structural Engineer: AECOM
Services Engineer: AECOM
Sustainability Consulting: Best Foot Forward (acquired by Anthesis in 2013)
Project Manager: Gleeds
Contractor: Morgan Sindall
AE Interest: LEED Platinum, BREEAM Outstanding, natural ventilation, carbon neutral laboratory, UK Structural Timber Award recipient 2016, inspired the creation of a carbon assessment calculator, excess energy produced by the building will offset carbon from construction after 25 years
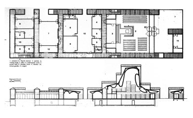
Bagsvaerd Church – Copenhagen, Denmark
Building: Bagsvaerd Church
Location: Copenhagen, Denmark
Completion: 1976
Architect: Jorn Utzon
AE Interests: Reinforced concrete ceilings only 12 cm thick span 17 meters, innovative lighting, concrete shell vaults
Article [1]
Brion Family Tomb – Treviso, Italy
Architect: Carlo Scarpa
Building: Brion Family Tomb
Location: Treviso, Italy
Completion: 1977
Architect: Carlo Scarpa
AE Interests: Narrative architecture, Modern style, combinations of base and precious materials,










leave a comment