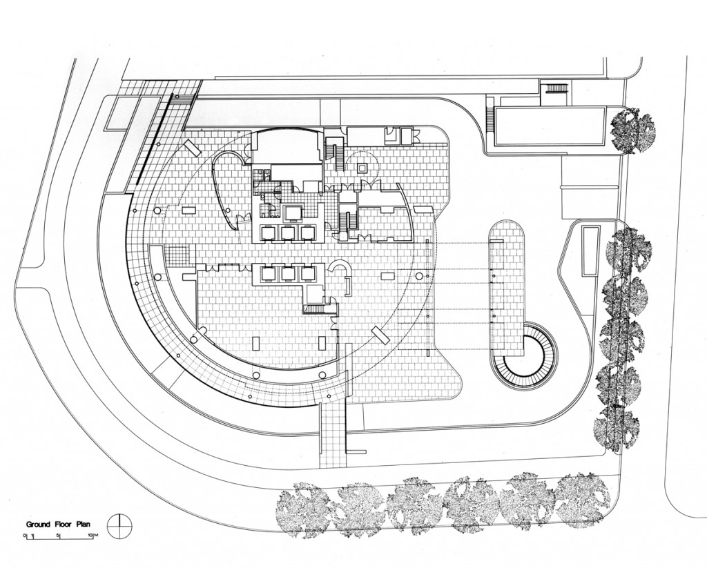
Camden Medical Centre – Singapore

[1,2,3]
Location: Singapore
Completed: 1998
Architect: Richard Meier
Structural Engineer: ARUP
M & E Engineer: J Roger Preston
AE Interests: solar protection, minimizing building’s footprint
Updated by Miguel Yapur, June 2020

leave a comment