Central Building – BMW Plant – Leipzig, Germany

[1,2,3,4]
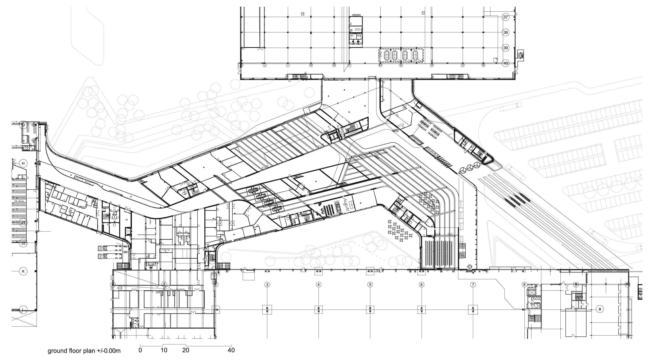
Building: Central Building – BMW Plant
Location: Leipzig Germany
Completed: 2005
Architect: Zaha Hadid Architects
Design: Zaha Hadid with Patrik Schumacher
Landscape Architect: Gross. Max
Structural Engineer: IFB Dr. Braschel AG, Anthony Hunt Associates
Lighting Design: Equation Design
AE Interests: Engineered to have all levels of employees interacting
….
Updated by Miguel Yapur, July 2020

leave a comment