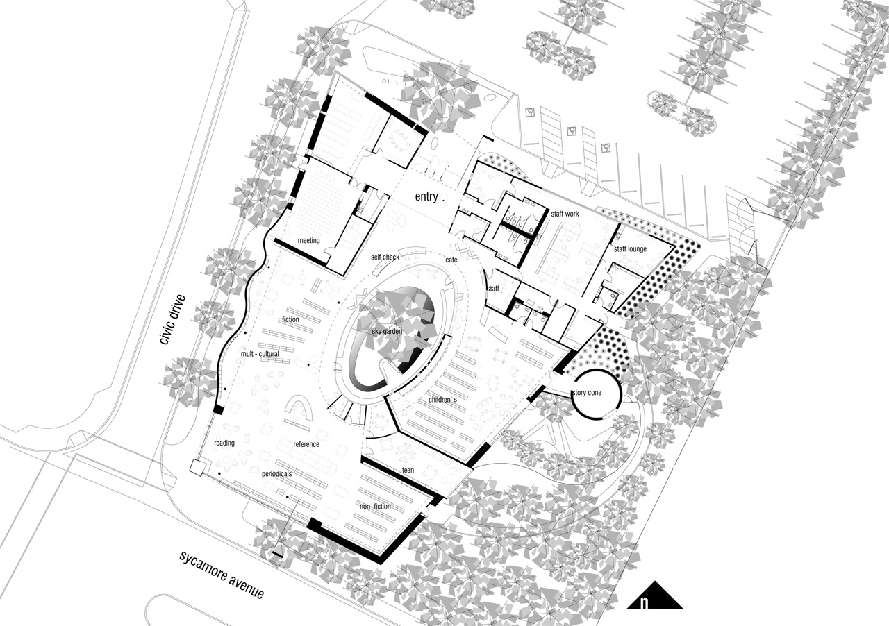
Hercules Public Library – Hercules, California, U.S.

[1,2,3,4]
Building: Hercules Public Library
Location: 109 Civic Dr, Hercules, California
Completed: 1996
Architect: Will Bruder, HGA Architects and Engineers
Structural Engineer: Umerai Associates
Mechanical Engineer: Glumac Consulting Engineers
Electrical Engineer: Glumac Consulting Engineers
Civil Engineer: Sandis Humber Jones
AE Interests: vertical brick pattern, sky garden, sustainability, wavy walls
—-
Updated by Miguel Yapur, July 2020

leave a comment