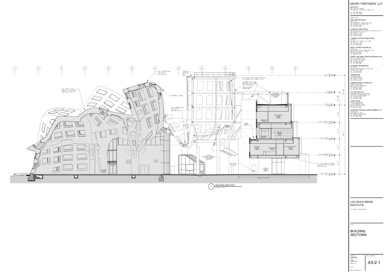
Lou Ruvo Alzheimer’s Institute – Las Vegas, Nevada, U.S.

[1,2,3,4]
Building: Lou Ruvo Alzheimer’s Institute
Location: Las Vegas, Nevada
Completed: 2009
Architect: Gehry Partners, LLP
Structural Engineer: WSP Cantor Seinuk
MEP: Cosentini Associates
AE Interests: uneven stack of block units, sustainable waves of steel and glass cover, complex structure and form
—-
Updated by Miguel Yapur, June 2020

leave a comment