Metal Shutter House – New York City, New York, U.S.

[1,2,3]
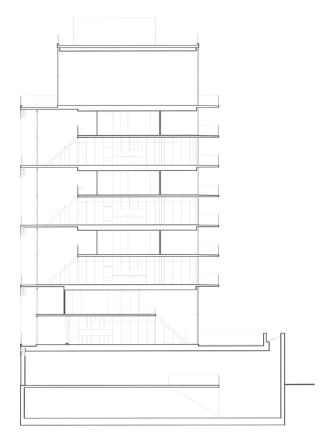
Building: Metal Shutter House
Location: 524 West 19th Street, West Chelsea, New York, NY
Expected Completion: 2011
Architect: Shigeru Ban
AE Interests: shutters, motors, light control, open plan, universal floor, paper
—-
Related Article: Dezeen, ArchDaily
Updated by Miguel Yapur, June 2020

leave a comment