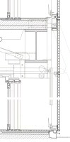
Paper Art Museum – Mishima, Shizuoka, Japan



[1,2,3,4]
Location: Mishima, Shizuoka, Japan
Completed: 2002
Architect: Shigeru Ban
Structural Engineer: Hoshino Architect & Engineer
General Contractor: Obayashi Corporation
AE Interests: fiberglass reinforced panels, atrium, spacial continuity, art gallery, moving facade
….
Updated by Miguel Yapur, June 2020

leave a comment