Cultural and Congress Center – Luzern, Switzerland

[1,2,3,4]
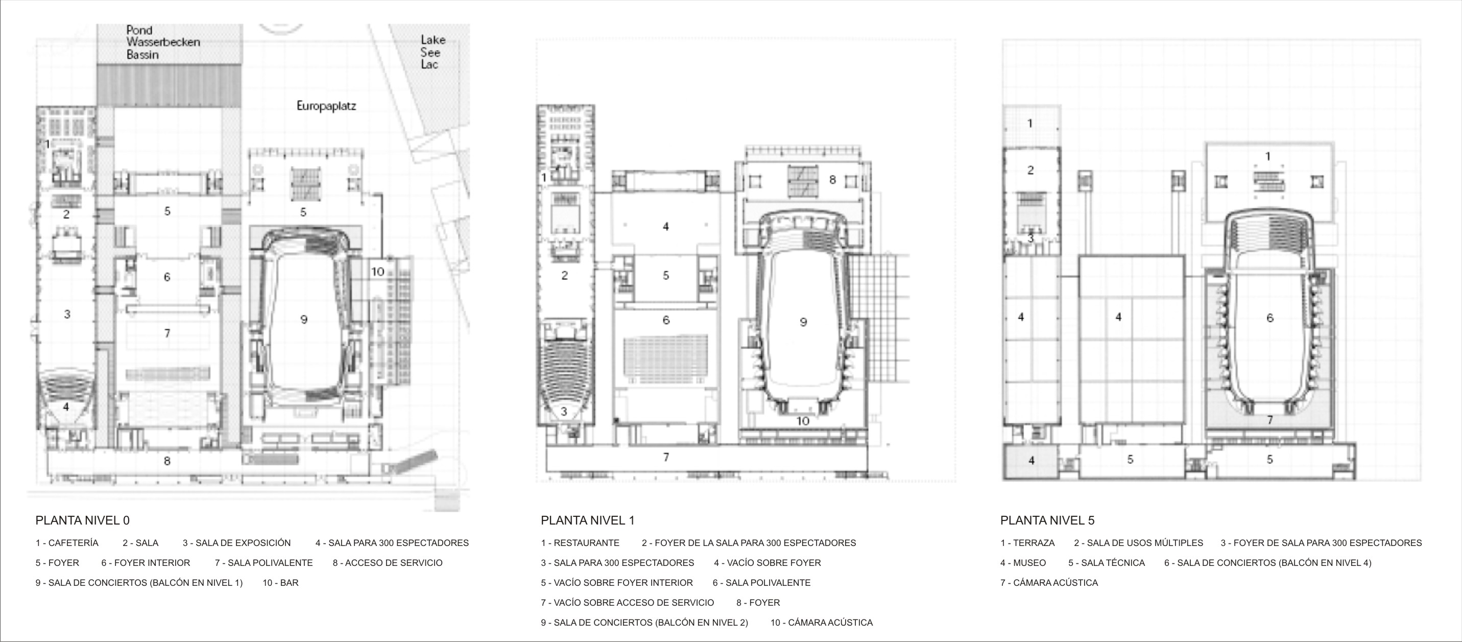
Building: Cultural and Congress Center
Location: Europaplatz 1, 6005 Luzern, Switzerland
Completed: 2000
Cost: $120 million
Architect: Jean Nouvel
Structure Consultant: Elektrowatt Ingenieurunternehmung AG Pluss Und Meyer Bauingenieure AG
Acoustic Engineer: Russell Johnson
AE Interests: Large overhanging roof. Channels bring the neighboring lake inside the building.
—-
Updated by Miguel Yapur, July 2020

leave a comment