Museum of Liverpool – Liverpool, U.K.

[1,2,3,4]
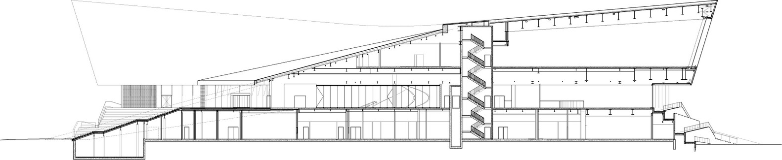
Building: Museum of Liverpool
Location: Liverpool, United Kingdom
Completion Due: 2010
Estimated Cost: $117 million
Architects: 3XN and AEW
Engineering: Buro Happold
AE Interests: Features a rainwater harvesting system and will be powered by a Combined Heat and Power plant so as to be more environmentally friendly.
—-
Updated by Miguel Yapur, July 2020

leave a comment