
[1,2,3,4]
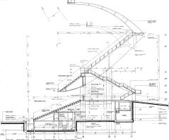
Building: San Nicola Stadium
Location: Bari, Italy
Completed: 1990
Architect: Renzo Piano Building Workshop
Structural: Arup, M. Milan, Studio Vitone & Associati
AE Interests: structure, “petal” design, safety conditions, concrete
—-
Updated by Miguel Yapur, July 2020
leave a comment