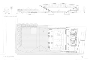
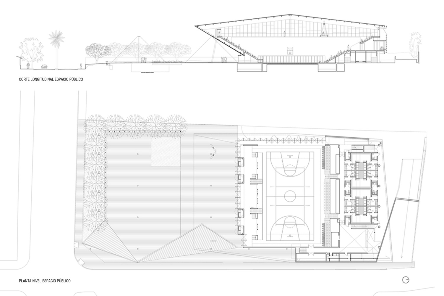
Municipal Gym of Salamanca – Salamanca, Chile
Building: Municipal Gym of Salamanca
Location: Salamanca, Chile
Architect: Carreño Sartori Arquitectos
Collaborators: Pamela Jarpa Rosa, Pia Mastrantonio Pedrina, Claudia Wagner Böhmer
Structural Calculation: SyS Ingenieros Consultores
Electric Project: ICG S.A.
Sanitary Project : Roberto Pavéz Mujica
Topographic Project: Ángel Espinoza Varas
Landscape Project: Carreño Sartori Arquitectos
Construction: Constructora Lohse y Villablanca ltda
AE Interests: conceived from the site, controlled interior light, wood, metal, and concrete, faceted geometry, open to pedestrian sidewalks, incorporates originally closed lots






leave a comment