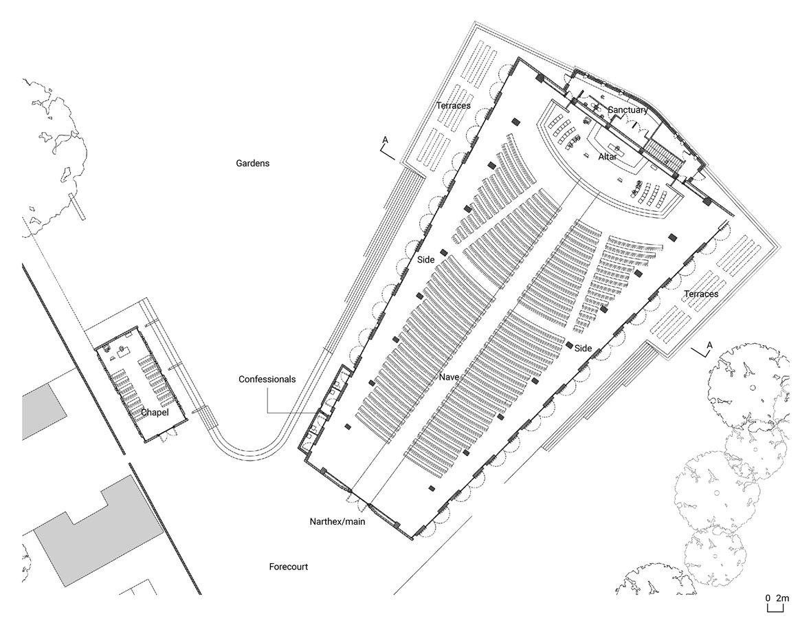
Sacred Heart Cathedral of Kericho – Kericho, Kenya




[1, 2, 3, 4]
Name: Sacred Heart Cathedral of Kericho
Location: Kericho, Kenya
Architects: John McAslan + Partners, Triad Architects
Structural Engineering: EngPlan
M & E Consultant: EAMS
Multidisciplinary Engineer: Arup
Contractor: Esteel Construction
Furniture Design & Entrance Doors: Studio Propilis
Lead Artist: John Clark
Awards: Light and Interior Surface category in the Surface Design Awards 2017 (Lighting), Judges Special Award in BCIA 2016 (Engineering)
Cost: $2.6 M
Size: 30,139 sq. ft.
Year of Completion: 2015
AE Interests: African Roman Catholic Cathedral, finger-jointed cypress timber slats, naturally ventilated roof, acoustically moderating space, ascension of roof towards the altar

leave a comment