School of Design and Environment 4 – Singapore, Singapore




Name: School of Design and Environment 4
Location: Singapore, Singapore
Address: 8 Architecture Dr, Singapore
Architect: Multiply Architects, Serie Architects, Surbana Jurong
Construction: Furukawa, Hirata Corporation
Electrical Engineer: Surbana Jurong
Mechanical Engineer: Surbana Jurong
Landscaping and Farming: Surbana Jurong
Structural Engineer: Surbana Jurong
Civil Engineer: Surbana Jurong
Size: 92,440 sq ft
Year of Completion: 2019
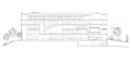
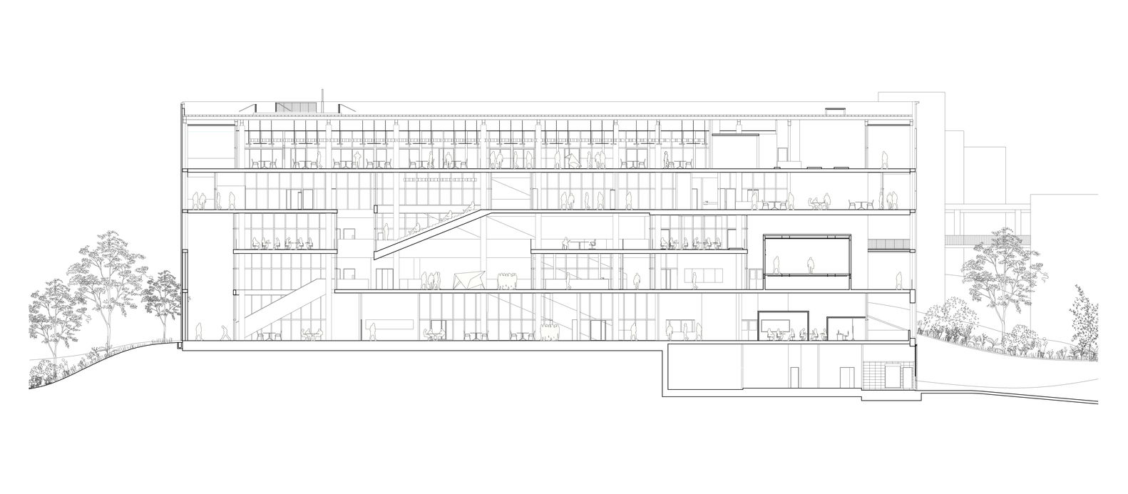
AE Interests: The climate-responsive building includes more than 1,500 square meters of design studio space, a 500 square-meter open plaza; a wide variety of public and social spaces; workshops and research centers; a new café and a library.

leave a comment