The Zayed Centre – London, UK

Name: Zayed Centre for Research into Rare Disease in Children
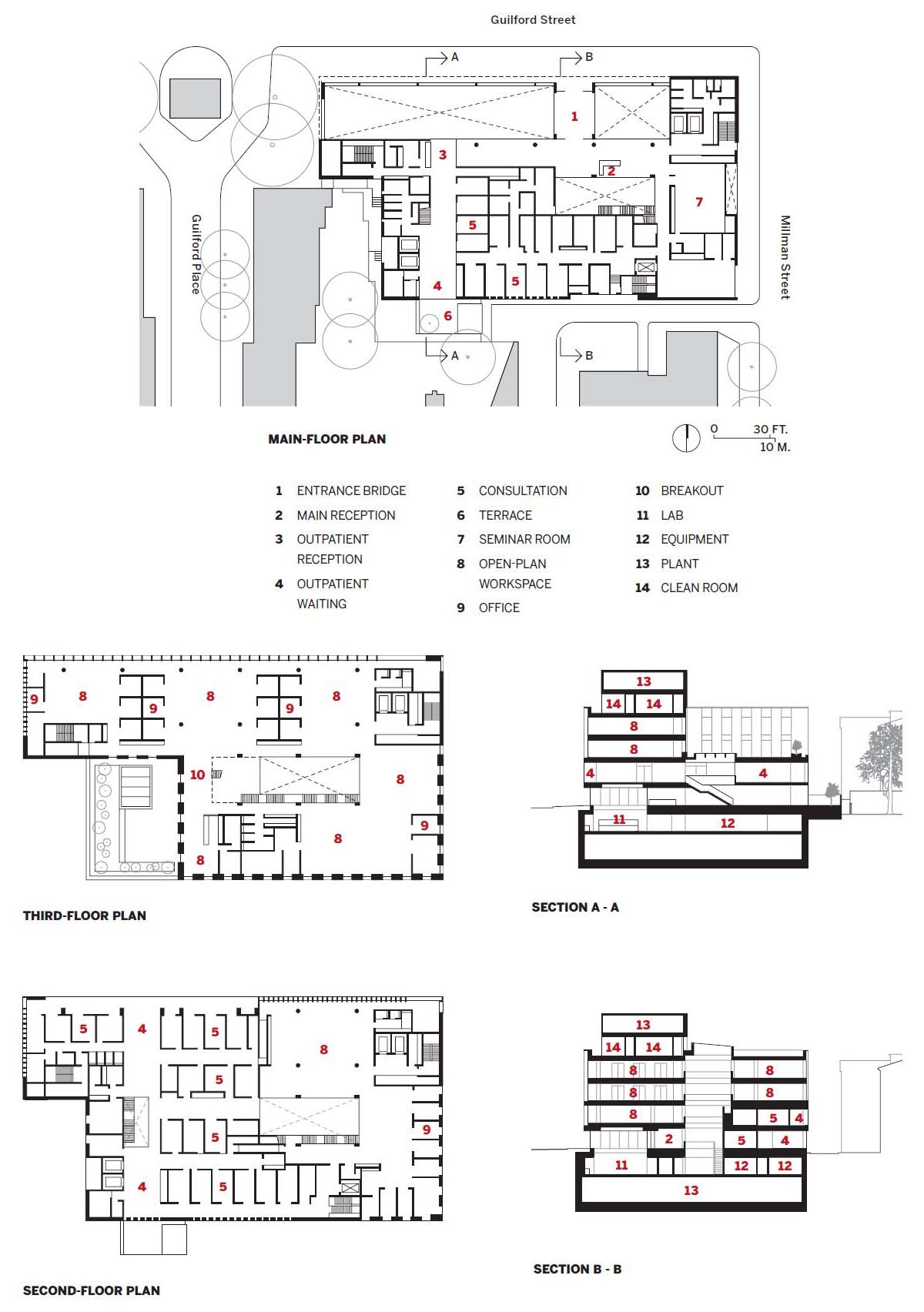
Location: London, United Kingdom
Architect: Stanton Williams
Structural Engineer: Pell Frischmann
Contractor: Skanska UK
Manufacturers: KEIM, Feldhaus Klinker
Project Manager: Gardiner & Theobald
Façade Consultant: Eckersley O’Callaghan
Area: 141,000 sq. ft.
Completed: 2019
AE Interests:
First purpose built pediatric center, large sky-lit atrium w/oak staircase, glass and terra cotta facade, impressive finned terra-cotta screen shielding glass walls, 8-story concrete structure, post-tensioned slab with wide spans, moving interactive sculpture in the main entrance, visible laboratories from all sides
Video [1]





leave a comment