Kadokawa Culture Museum – Tokorozawa, Japan




Name: Kadokawa Culture Museum
Address: Japan, 〒359-0023 Saitama, Tokorozawa, Higashitokorozawawada, 3 Chome−31番地3 ところざわサクラタウン
Architect: Kengo Kuma and Associates
Construction: Kajima Corporation
Completion Date: 2020
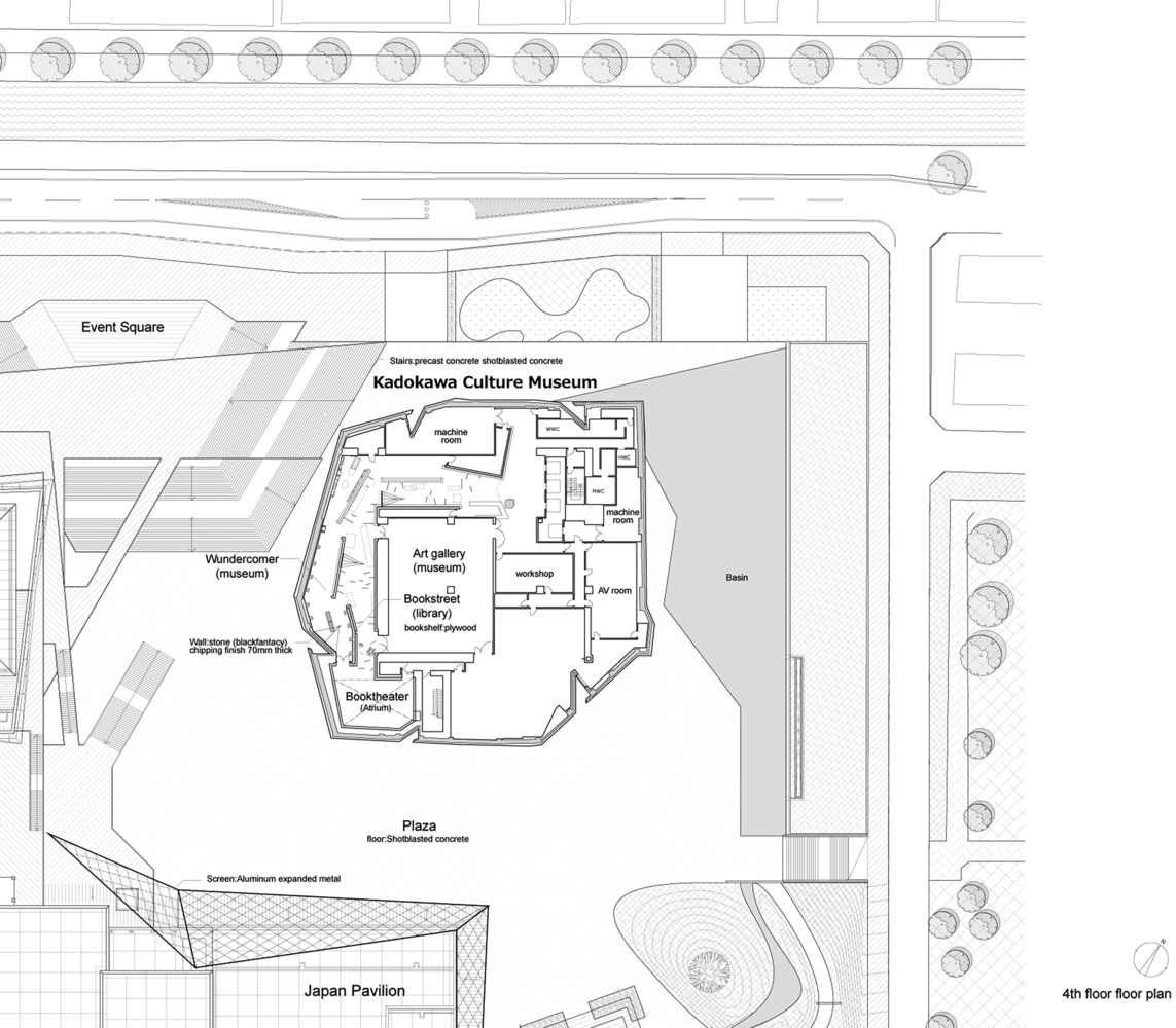
AE Interests: Granite facade of 20000 individual pieces, 40 meters tall, five floors, double height library, projection mapping turns bookshelves into theater, cafes, shop, galleries, outer wall of reinforced concrete.

leave a comment