Oklahoma Contemporary Arts Center – Oklahoma City, Oklahoma



Building: Oklahoma Contemporary Arts Center
Location: Oklahoma City, Oklahoma
Address: 11 NW 11th St, Oklahoma City, OK 73103
Architect: Rand Elliott, FAIA
Company: Rand Elliott Architects
Client: Oklahoma Contemporary
Civil Engineer: CEC
MEP Engineer: Alvine & Associates, Inc.
Structural Engineer: Wallace Engineering
General Contractor: Smith & Pickel Construction, Inc.
Theater Consultant: Schuler Shook
Acoustics: Audio Video Designs
Construction Cost: $26 M
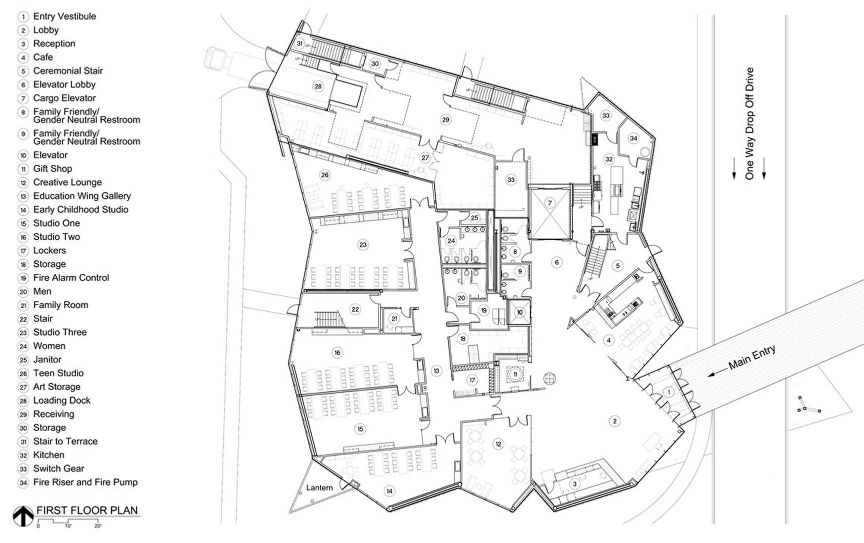
Size: 53,916 sq. ft
AE Interests:
4 stories, irregular braced steel frame, exterior constructed from bright-dipped anodized aluminum causing the building to capture the ever-changing weather conditions by reflecting the changes in light and sky, this design feature is why the building is called “folding light,” consists of 16,800 custom designed extruded aluminum fins extending from the ground to the roof
Videos [ 1 ]

leave a comment