Friendship Hospital Satkhira – Shyamnagar Upazila, Bangladesh




Name: Friendship Hospital Satkhira
Location: Shyamnagar Upazila, Bangladesh
Architect: Kashef Mahboob Chowdhury
Contractor: Hasan and Sons
Structural Engineering: Zayedur Rahim
Electrical Engineering: Zafar Ahmed
Plumbing Engineering: Prodip Kumar Haldar
Size: 36,457 sq. ft.
Year of Completion: 2018
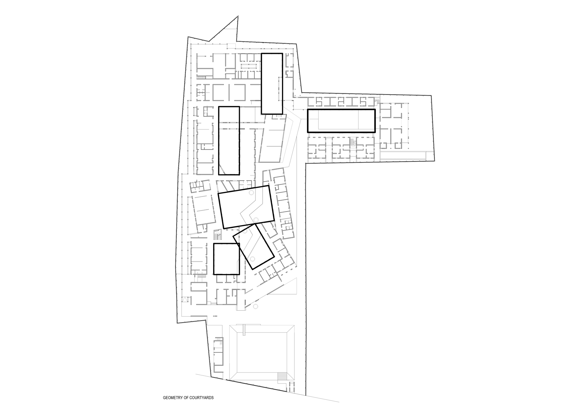
AE Interests: courtyards for natural ventilation, water harvesting systems, local handmade brick construction, green roofs, embankment with water run-off pumping system to combat local flooding, slots in brick facade for additional wind ventilation, canal and glass windows to reflect natural sunlight into rooms.

leave a comment