BIT Sports Center – Beijing, China




Building: BIT Sports Center
Address: Liangxiang, Beijing, China
Completion Date: July 2019
Design Architect: Atelier Alter Architects
Executive Architect & Sustainability Lead: China IPPR International Engineering
Structural engineer: China IPPR International Engineering
MEFP Engineer: China IPPR International Engineering
General Contractor: Beijing Construction Engineering Group
Landscape design: China IPPR International Engineering
Curtain Wall Consultant: PAG Façade Systems
Acoustical Engineer: China IPPR International Engineering
Lighting Consultant: Jingyunyoujin Lighting Technology
AE Interests:
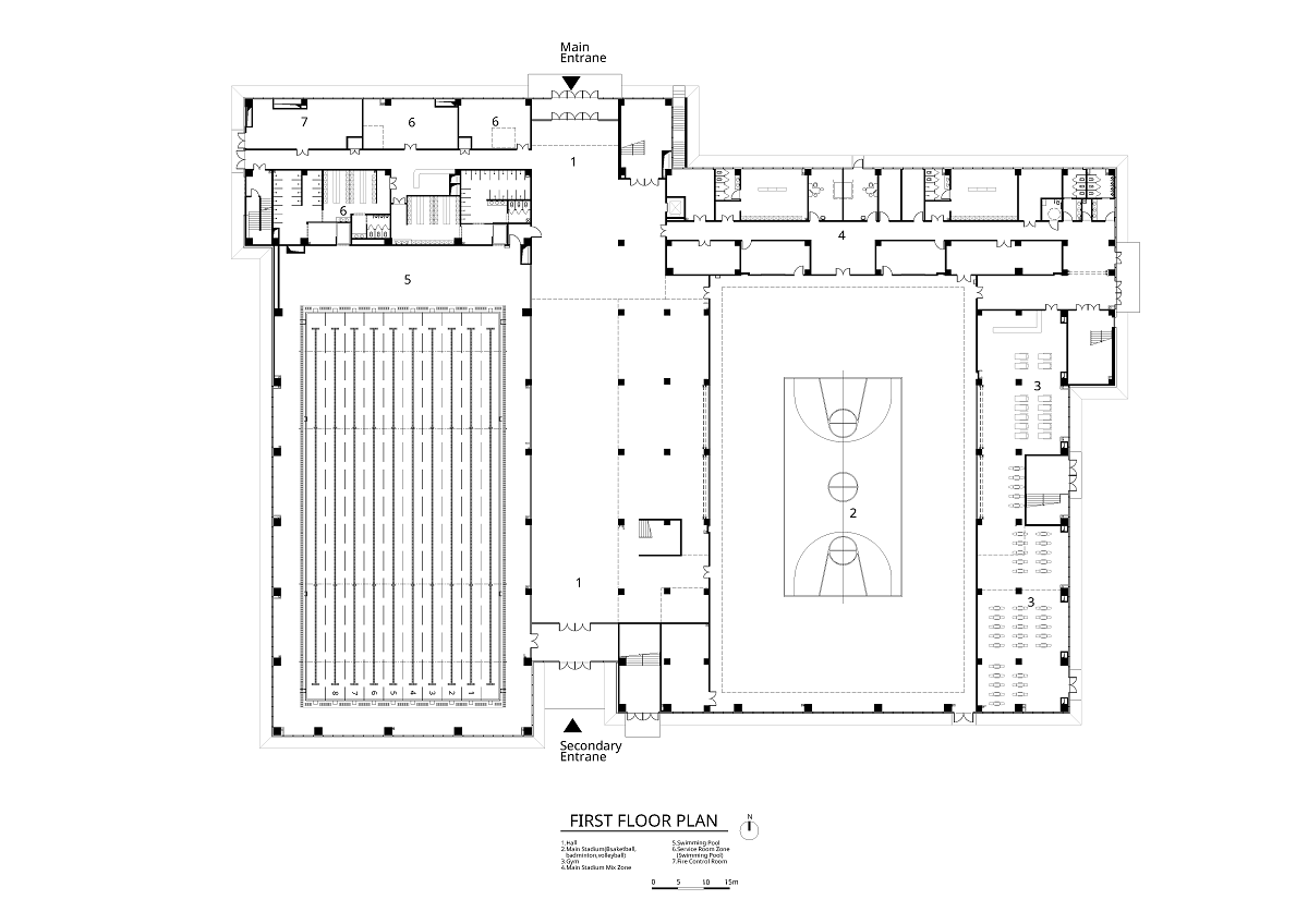
Sports Complex for University, 10 Lap Swimming Pool, Basketball court with 3000 seat stands, 3 double curvature surfaces for the roof. Natural Lighting through Skylights, 15,692 square meters, $23.5 million

leave a comment