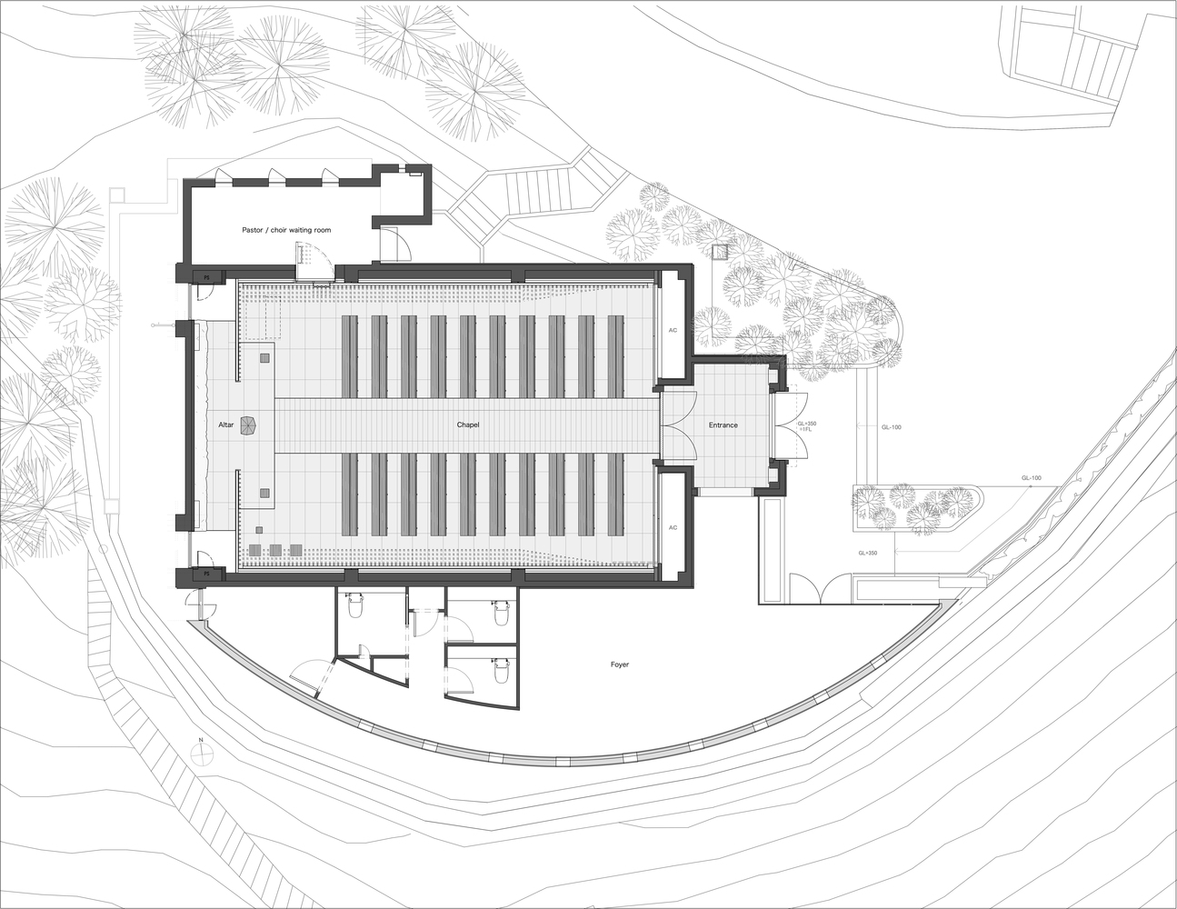
Westin Miyako Chapel – Kyoto, Japan




Name: Westin Miyako Chapel
Location: Kyoto, Japan
Address: Keage, Higashiyama Ward, Sanjo, Kyoto 605-0052, Japan
Architect: KATORI archi+design associates
Contractor: KINSO Inc.
Lighting Design: ModuleX Inc.
Acoustical Design: Naniwa Chiba Acoustics Inc.
Size: 2,551 sq. ft.
Year of Completion: 2020
AE Interests: ceiling timber latticework, wooden louver walls, interwoven lighting resembling sunlight in tree branches, connection to surrounding landscape

leave a comment