Chicland Hotel – De Nang, Vietnam



[1, 2, 3]
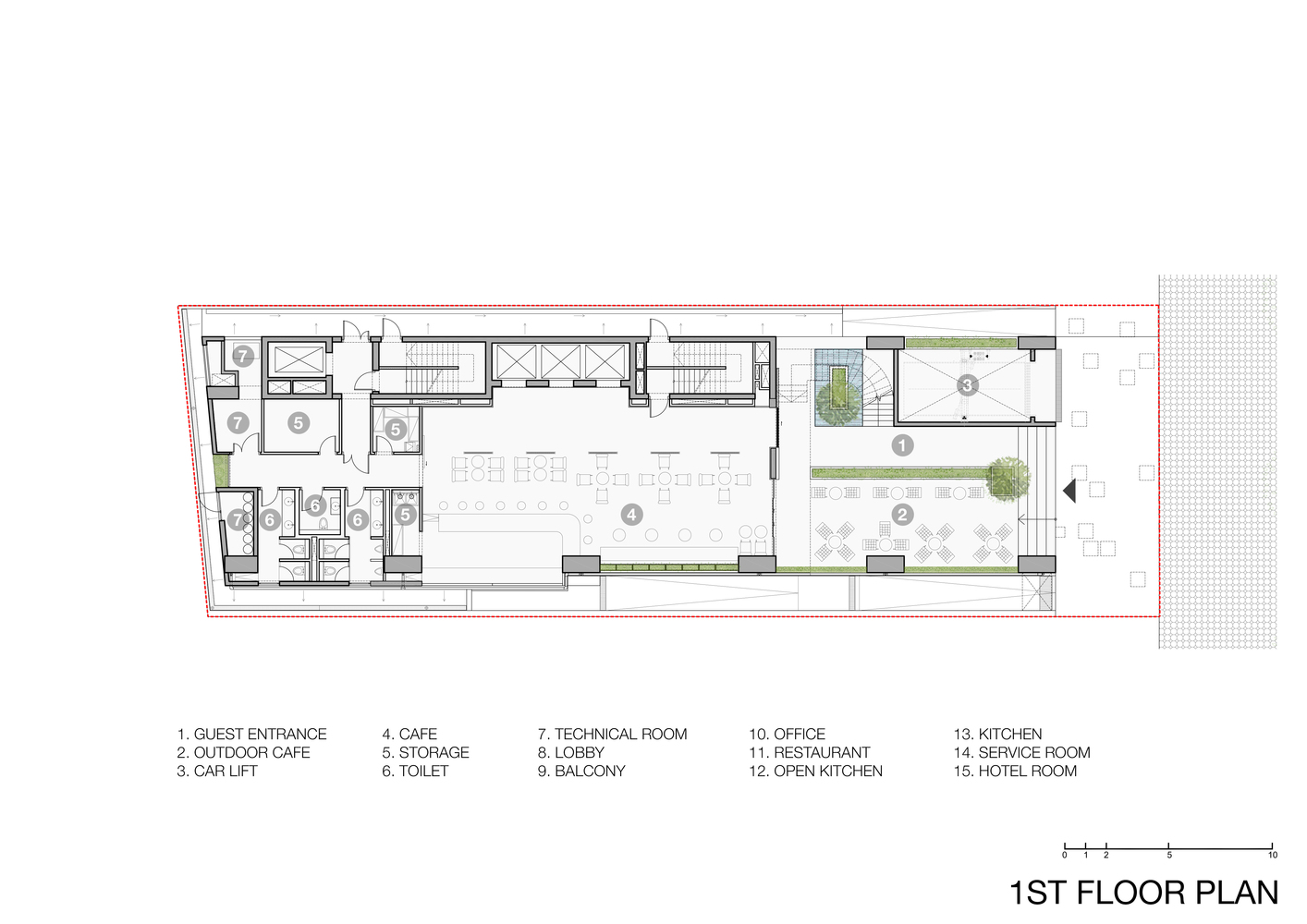
Building: Chicland Hotel
Location: No. 210, Vo Nguyen Giap Street, Phuoc My Ward, Son Tra District, Da Nang
Architect: VTN Architects
Mechanical & Electrical Engineer: NDC Consulting JSCo
Civil & Structural Engineer: SMT Viet Name JSCo.
Main Contractor: Hicon
Completed: 2019
AE Interest:
main material is concrete with greenery system covering it, tree pots integrated into balconies, tropical plants are used, materials used in the interior are from natural or local materials, greenery façade creates microclimate for building, making the space cooler.
Articles: [1, 2]

leave a comment