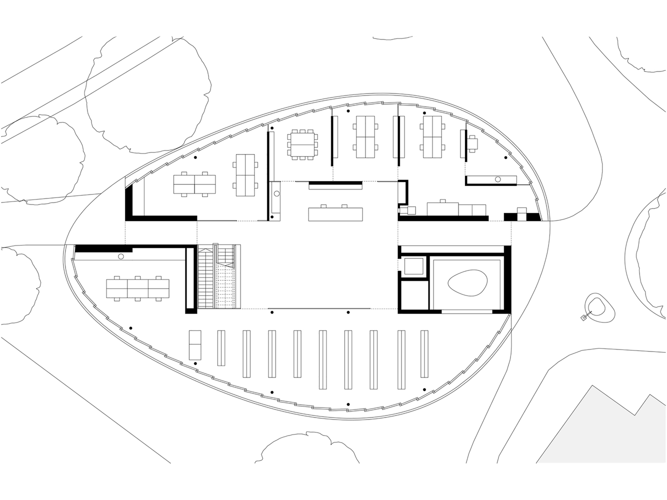
Dornbirn Public Library – Dornbirn, Austria




Name: Dornbirn Public Library (Stadtbibliothek Dornbirn)
Location: Dornbirn, Austria
Address: A-6850 Dornbirn, Schulgasse 44
Architect: Dietrich Untertrifaller Architekten
Builder: Gotzis and Rummele Bau, Wilhelm + Mayer Bau
Electronics: Hecht
Landscaping: Balliana-Schubert
Size: 17,330 sq. ft.
Year of Completion: 2019
AE Interests: lattice facade of prefabricated ceramic books, fixed shading system, wood-aluminum windows with triple glazing, book-inspired interiors.

leave a comment