Sara Cultural Centre – Skelleftea, Sweden
Name: Sara Cultural Centre
Location: Kanalgatan 43b, 931 31 Skelleftea, Sweden
Architect: White Arkiteker
Structural Engineer: Dipl.-Ing. Florian Kosche
Mechanical Systems: Skellefteå Kraft and ABB
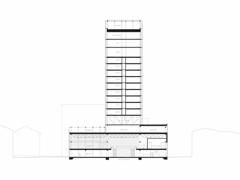
Height: 20 Stories / 75M
Size: 30,000 sqm
Completed 2021
AE Intrest: Cross-Laminated Timber. Community center. “Climate-smart house”. Building systems use AI to optimize thermal comfort and psychrometry. Columns glued-laminated timber reinforced with steel trusses. Modular construction. Solar power generator. Shares power and heat with surrounding buildings. Carbon negative in 50 years.





leave a comment