Usera Public Library – Madrid, Spain
Name: Usera Public Library
Location: Madrid, Spain
Address: Av. de Rafaela Ybarra, 43, 28026 Madrid, Spain
Architects: Juan Herreros, Iñaki Ábalos (formerly of the firm Abalos & Herreros)
Project Architect: Ángel Jaramillo
Collaborating Artist: Peter Halley
Structural: José Manuel Sierra, Juan Gómez
Services: José Cruz, Pedro Blanco
Construction: Dragados, S.A.
Client: Comunidad de Madrid
Completed: 2003
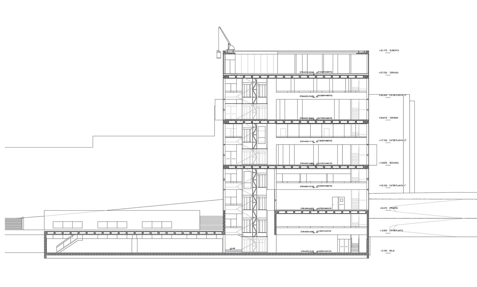
Area: 3500 sq m
AE Interests: Organization of space for user function, integration with surroundings, simplified construction, and creation of an atmosphere of delicate airiness. A structure concreted in the core and perimeter, with open, column-free middle, contributes to this airiness.
The original article for this building was posted on January 25, 2010 by Zaid Arzate.






leave a comment