School of Architecture – Marne-la-Vallee, France
Building: École d’architecture Marne-la-Vallee (School of Architecture – Marne-la-Valle)
Location: Marne-la-Vallee, France
Address: 12 Avenue Blaise Pascal, Champs-sur-Marne, France
Architect: Bernard Tschumi – Bernard Tschumi Architects
Client: University of Marne-la-Valle
Started: 1994
Completed: 1999
Area: 275,000 sq. ft.
Cost: 15,000,000 USD ($54.55/sq. ft.)
Materials: steel, concrete and glass
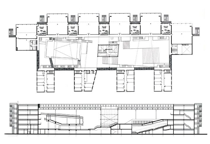
AE Interests: Uses concepts such as the “box inside a box”, cantilever and open spaces. The “box inside a box” concepts can be seen in the 400-eat amphitheater covered in extruded metal which is situated in the center of the building elevated fromthe ground creating a sort of floating box. Additionally the circulation of the building is possible through staircases and walkways to get from point A to point B. The amphitheater can also be accessed by several of these stairs and walkways. Wood was used to absorb much of the sound.
[ Essay ]
Original post by Matt McCarthy on January 26, 2010







leave a comment