Saїd Business School, Oxford University – Oxford, U.K.
Location: Oxford, Oxfordshire, England, UK
Phase 1 Completed: 2001
Phase 2 Completed: 2012
Architect: Dixon Jones Architects
Client: University of Oxford
Structural engineer: Alan Baxter and Associates
M&E consultant: Hurley Palmer Flatt
Quantity surveyor: Gleeds
Acoustic engineer: Sandy Brown Associates
Landscape consultant: Grontmij
Interior design: Nina Campbell
Catering consultant: Coverpoint Foodservice
Project manager: Oxford University Estates
Project manager: Gardiner & Theobald
CDM coordinator: HCD Management
Approved Building Control Officer: HCD Building Control
Main contractor: Chalegrove Properties
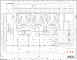
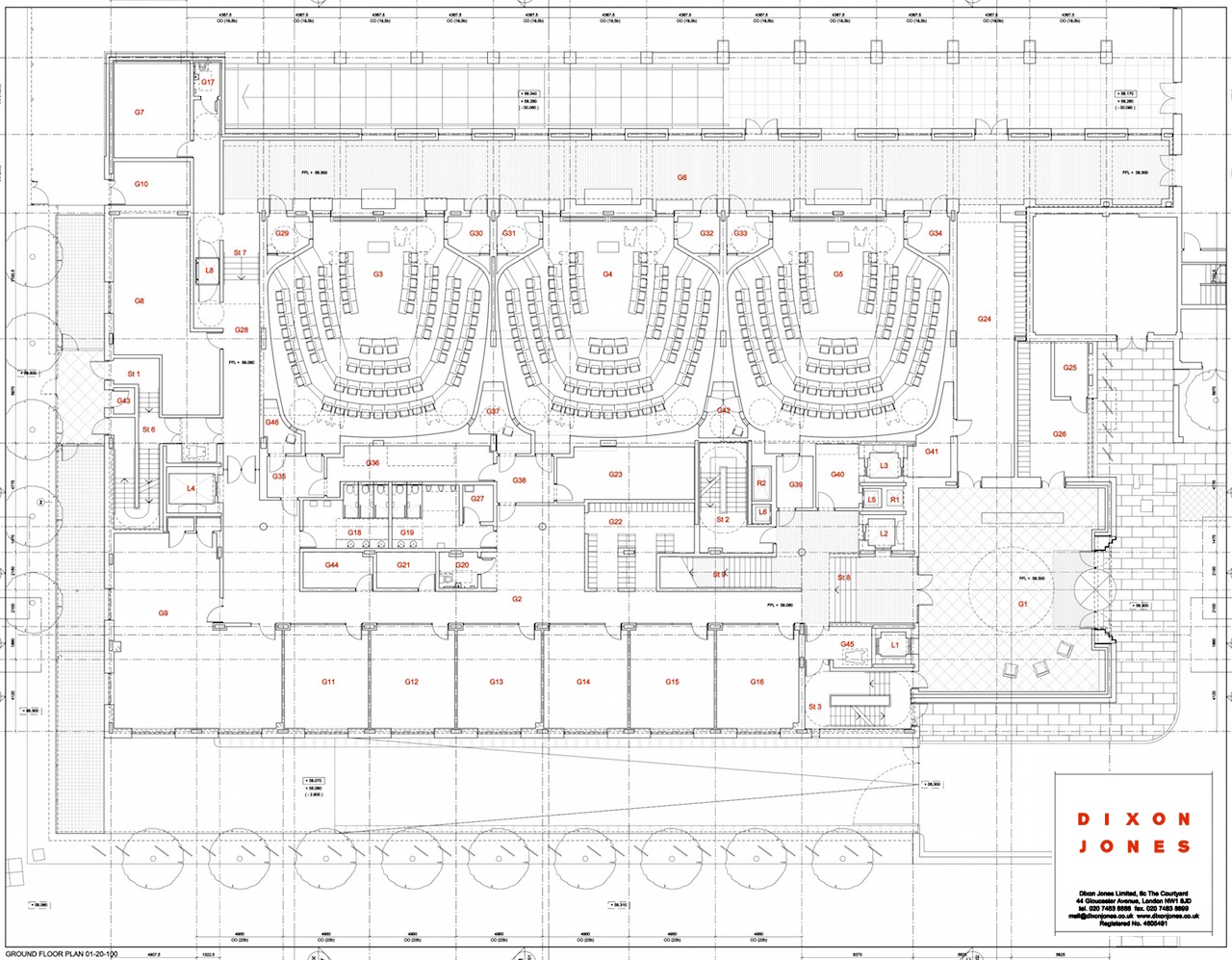
AE Interests: The two phases of this building reference classical and traditional features with elements such as a copper-clad ziggurat tower. The first phase of the building contains impressive noise reduction features given the high density of large capacity lecture halls. The second phase of the project matches the finish styles of its predecessor.
Original post by Cristina Calderon on January 26, 2010






leave a comment