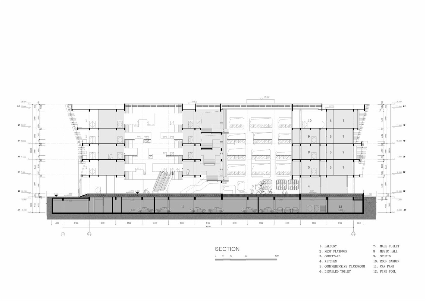
Guangzhou Third Children’s Palace- Guangzhou, China
Images: [1,2,3,4,5]
Building: Guangzhou Third Children’s Palace
Location: Guangzhou, China
Address: No.68, Zhendong Road, Huangpu District, Guangzhou City, Guangdong Province, China
Completion: 2020
Square footage: 29000 m² (312153.4 ft²)
Architect: Guangzhou Urban Planning & Design Survey Research Institute
Structural Engineer: Guangzhou Urban Planning & Design Survey Research Institute
Construction: Guangzhou Housing Development and Construction
Facade Consultant: Guangzhou TEC Architectural Technology Co
Client: Guangzhou Third Children’s Palace
AE Interests: Natural ventilation, horizontal louvers for shading, shading triangular panels in lightshed to diffuse reflections of soft natural light, designed to comply with topography.
Articles: [1,2,3,4]
Essay






leave a comment