Vennesla Library and Culture House – Vennesla, Norway
Images: [1] [2] [3] [4] [5]
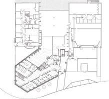
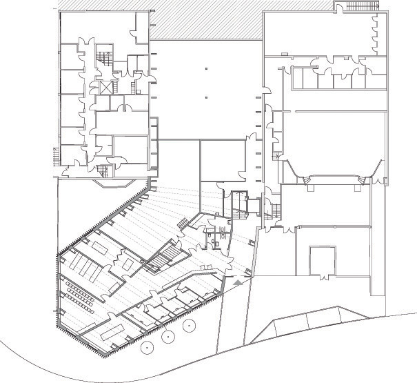
Building: Vennesla Library and Culture House
Location: Vennesla, Norway
Address: Venneslamoen 19, 4700 Vennesla, Norway
Completion: 2011
Area: 1,938 m2 (20,860.46 ft2)
Architect: Helen & Hard
Aluminum Manufacturer: Reynaers Aluminum
Timber Manufacturer: Bo Andren
AE Interests: Prefabricated glue-laminated timber, EU Mies Award winner, Acoustic absorbents containing air conditioning ducts, vertical sun shading, all-wooden structure
Video: [1]
Articles: [1] [2] [3]
Essay






leave a comment