Alief Neighborhood Center and Park – Houston, Texas
Images: [1, 2, 3, 4]
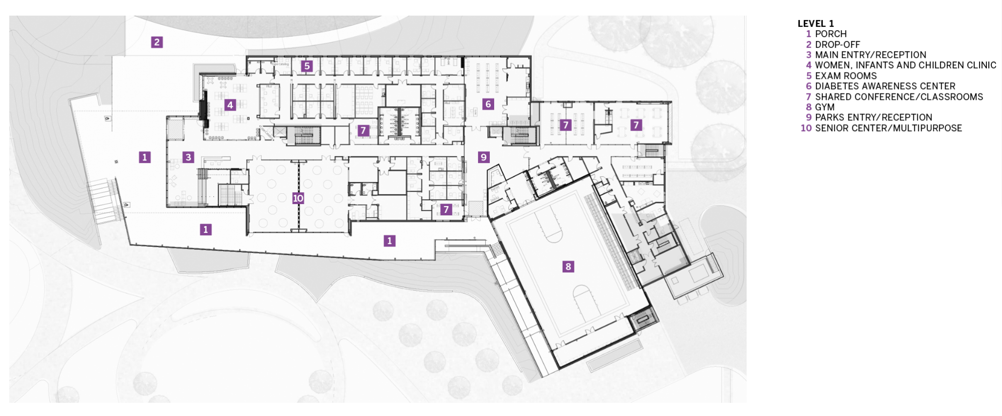
Building: Alief Neighborhood Center and Park
Location: Houston, Texas
Address: 11903 Bellaire Blvd, Houston, TX 77072
Client: City of Houston
General Contractor: Manhattan Construction
Architect: Page
Structural Engineer: Dally + Associates
MEP Engineer: Collaborative Engineering Group
Civil Engineer: Gradient Group
Landscape Architect: SWA Group
AV Consultant: 4b Technology Group
Pool Consultant: Counsilman-Hunsaker
Envelope Consultant: Zero/Six Consulting
Skatepark Consultant: Action Sports Design
Area: 70,000 sq ft
Completed: 2022
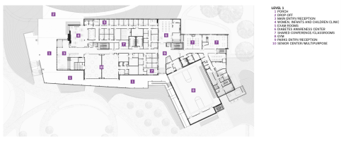
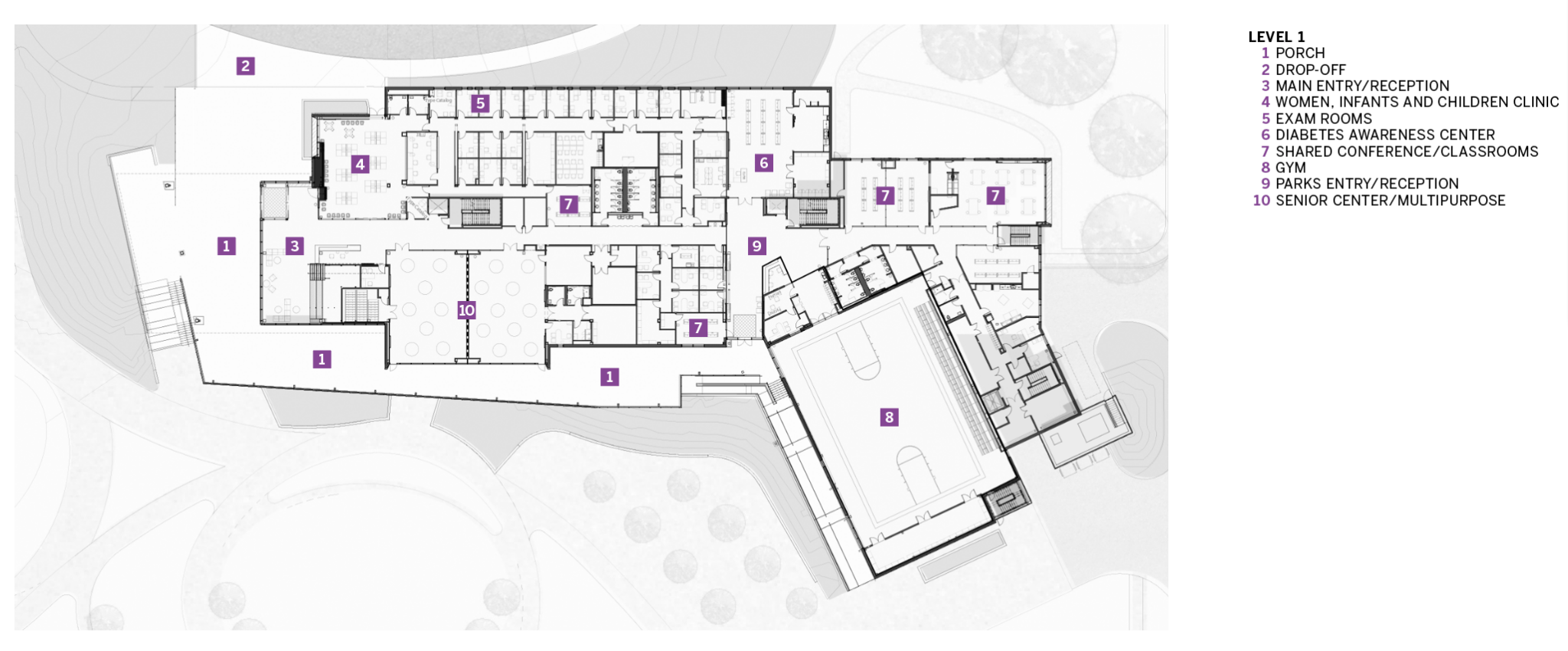
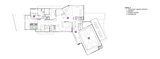
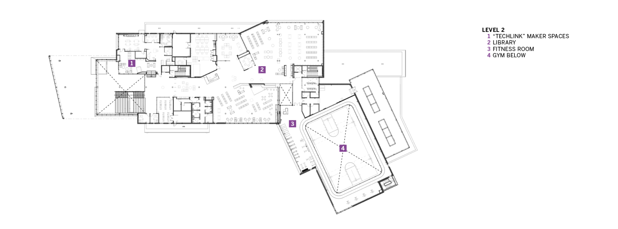
AE interests: Three departments- health, parks, and library, Southwest corner – forest grove, large sections of windows for natural lighting, rectilinear form, LEED silver
Sources [1, 2, 3, 4]Â





leave a comment