Taiping Financial Tower – Hangzhou, China
Images: [1], [2], [3], [4], [5], [6]
Building: Taiping Financial Tower
Location: Hangzhou, China
Address: China, Zhejiang, Hangzhou, Jianggan District, 新城商圈 邮政编码: 310016
Completed: 2023
Area: 1,614,586 ft² (156,000 m²)
Executive architects: Zhejiang University Architectural Design and Research Institute (UAD)
Design Architects: SmithGroup & UAD
Structural Design: UAD
HVAC Design: UAD
Electrical Design: UAD
General Contractor: China Construction Third Engineering Bureau
Client: Taiping Realty (Hangzhou) Co., Ltd.
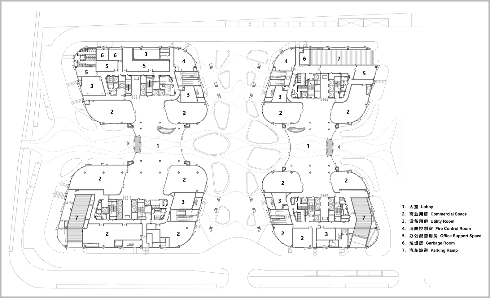
AE Interests: Butterfly-inspired design with four towers at the site’s corners, connected by two-story podiums and corridors forming graceful “wings,” stone street-facing facades for stability, transparent interior facades for lightness, varied stone-to-glass ratios for energy efficiency, two-story glass lobby, surrounded by public green space and mixed-use retail, LEED Gold certified
Articles: [1], [2], [3], [4]
More







leave a comment