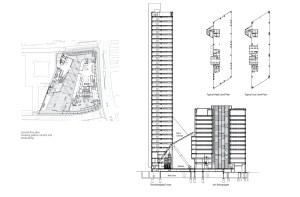
201 Bishopsgate and The Broadgate Tower – London, U.K.

[1,2,3,4]
Building: 201 Bishopsgate and The Broadgate Tower
Location: 201 Bishopsgate, London, United Kingdom
Completed: 2008
Architect: SOM
Structural Design: SOM
Contractor: Bovis Lend Lease
Facade Engineer: Permasteelisa Group
AE Interests: expressed structural bracing, construction process over railway tracks
—-
Awards: CTBUH Best Tall Building Europe 2009 Winner
Updated by Patrick Wray, February 2025

leave a comment