Armani/Ginza Tower- Tokyo, Japan

[1,2,3,4]
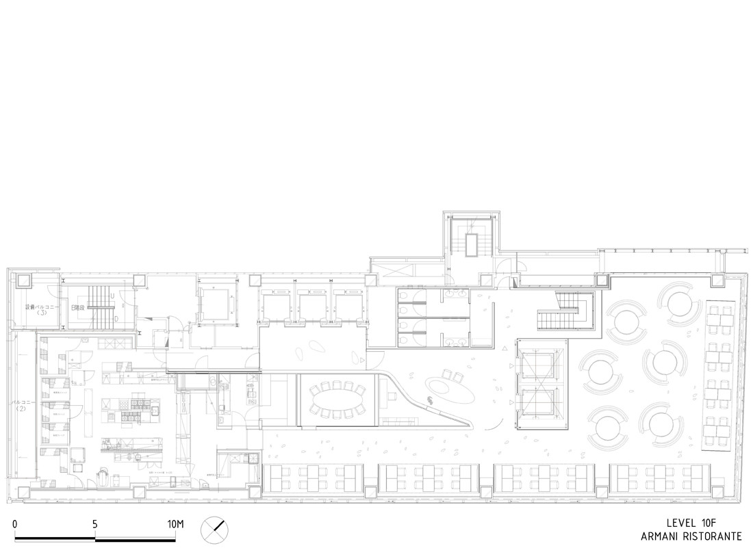
Building: Armani/Ginza Tower
Location: Tokyo, Japan
Completed: 2007
Architect: Massimiliano and Doriana Fuksas
Lighting Design: Speirs & Major Associates
Interior Architecture: Fliippo Birch, Ana Gugic, Maria Lucrezia Rendace
Contractor: Ishimaru & Nishimori
AE Interests: glass tower with cascading lighted leaves mirroring reflections of the sky and surrounding buildings
Updated by Miguel Yapur, July 2020

leave a comment