Peace Peres House – Tel Aviv, Israel

[1,2,3,4]
Building: Peace Peres House Jaffa
Location: Jaffa, Tel Aviv, Israel
Architect: Massimiliano and Doriana Furksas
Interior Design: Fuksas
Engineering Consultant: Rokach-Ashkenazi
Structural Consultant: Kal-Binian Ltd
Contractor: Rom Geves Ltd
Facade Engineer: Allumier
Site Work Supervisor: Micheal Schaffer
Landscape Architect: TEMA
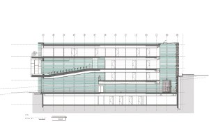
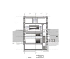
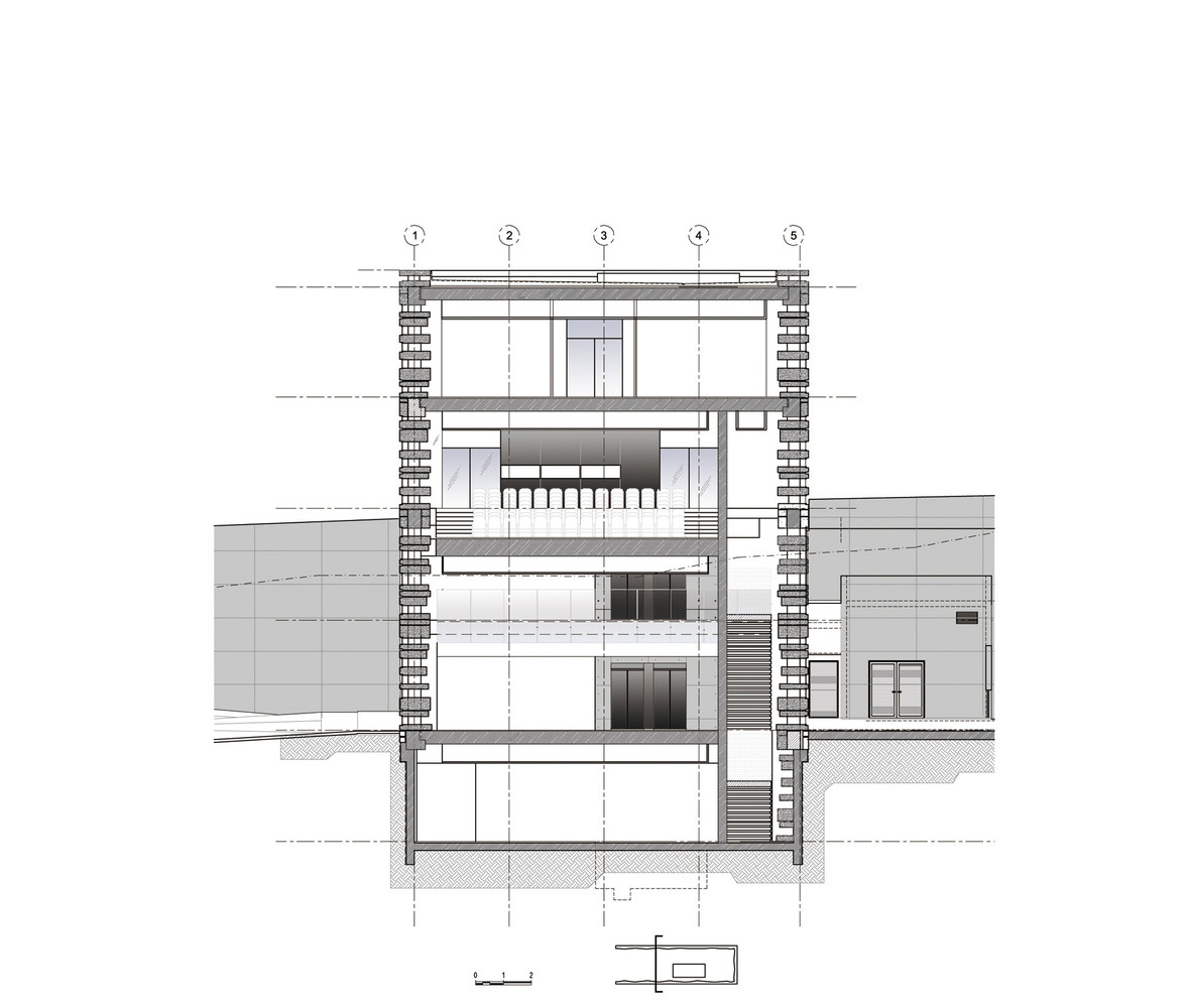
AE Interests: the parallelpiped building is created by the layering of various shaped glass and concrete placed on a monolithic base
—-
Updated by Miguel Yapur, July 2020

leave a comment