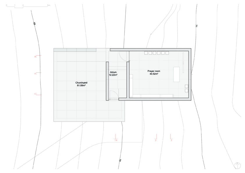
Capela do Monte – Barão de São João, Portugal

Name: Capela do Monte (Hillside Chapel)
Location: Barão de São João, Portugal
Address: 8600-018, Portugal
Architecture Firm: Álvaro Siza 2
Local Architecture Firm: GOP
Construction Firm: JSV
Client: Andorinha – Sociedade de Investigação e Desenvolvimento sócio-Económico e Cultural, Lda
Construction Year: 2018
Area: 702 sq. ft.
AE Interest:
Minimalist, sustainable, no MEP systems, perforated thermal bricks, green roof, natural light.




leave a comment