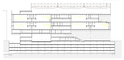
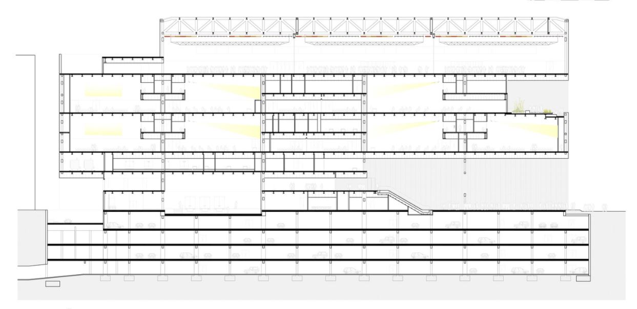
Lima Convention Center (LCC) – Lima, Peru
Location: San Borja, Peru
Address: Av. de la Arqueología 206, San Borja 15021, Peru
Design Architect: IDOM
Structural Design: Bernabeu Ingenieros
MEP Design: SOLVENTA
General Contractor: OAS
Area: 925,000 sq. ft
AE Interest:
Screen mesh, sun shading, great spans, minimalist, earthquake resistant.






leave a comment