Bathing Pavilion – Girona, Spain
Name: Bathing Pavilion (Pavelló del bany)
Location: Girona, Spain
Address: Carrer Sant Narcís, 32, 17800 Olot, Girona, Spain
Architect: RCR Arquitectes
Structural Engineer: Blázquez-Guanter SLP
Contractor: Mecàniques Bassegoda
Client: Olot City Hall & La Garrotxa Volcanic Zone National Park
Completed: 1998
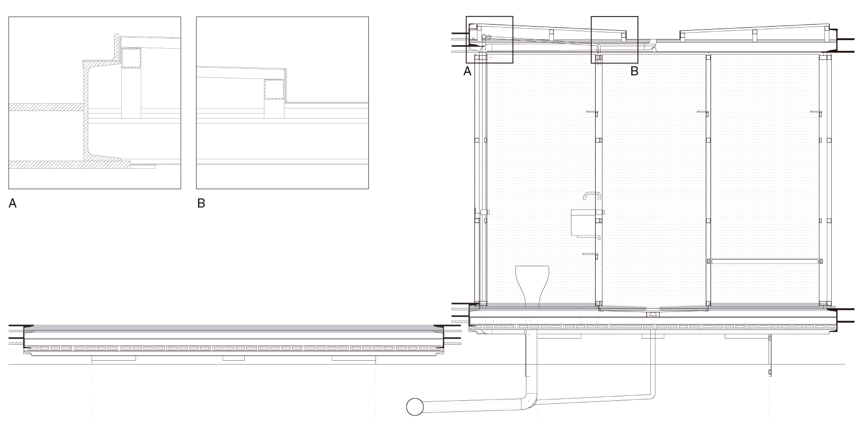
AE Interests: Oxidized finishing on metal exterior, curvilinear form to mimic nearby river, raised platform to prevent flooding, minimal use of materials, use of steel lintels to reinforce roof.
The original article for this building was posted on January 25, 2010 by Ben Ash.




leave a comment