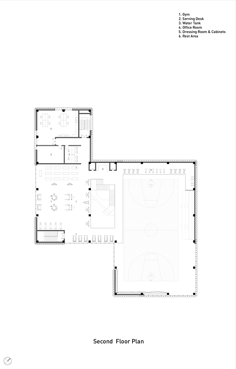
Changchun Community Sports Complex – Changchun, China
Building: Changchun Community Sports Complex
Location: Changchun, China
Architects: GBBN
General Contractor: Jilin Galaxy Construction
Landscape: PDS Landscaping
Client: Vanke Co.
Area: 25,800 ft²
Completion: 2021
AE Interests: Design of the sports complex reflects the site’s power plant history – simple rectangle, sawtooth roof smokestack, nod to power (represented through light). Perforated metal panels, terracotta panels with lights reflecting through the perforations.







leave a comment