Issam Fares Institute – Beirut, Lebanon
Building: Issam Fares Institute for Public Policy and International Affairs
Location: Beirut, Lebanon
Address: VFXH+XWG, Beirut, Lebanon
Construction date: 2006-2014
Client: American University of Beirut
Square footage: 3000 square feet
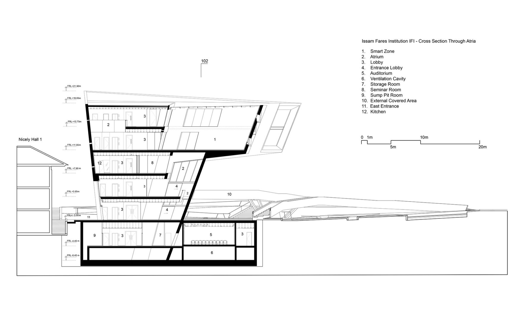
Number of Floors: 6
Architect: Zaha Hadid Architects
Structural Engineer: Rafik El Khoury & Partners
Construction Firm: Kettaneh Construction & Contracting
Acoustic Consultant: Rafik El Khoury & Partners
Mechanical Engineering: ZEF London, DD stage, Rabih. Rafik El Khoury & Partners
Electrical Engineering: Rafik El Khoury & Partners
Building Use: Provides a space for exchange of ideas, as well as develops policy research in the Arab region.
AE Interests: Includes a 2-story, 21 meter long cantilever. Cantilever creates a covered courtyard as well as reduces the footprint of the building to avoid blocking walking paths. Integrated with old cypress and ficus trees around the site. High efficiency active systems and recycled water technologies minimize buildings environmental impact.






leave a comment