Chinese Culture Exhibition Center – Lanzhou, Gansu Province, China






Building: Chinese Culture Exhibition Center
Location: Lanzhou, China
Address: 5CGV+Q5H, Xigu District, Lanzhou, Gansu, China 730094
Completion: 2019
Square Footage: 23000 m2
Architect: ECA2, Tengyuan Design
Lead Designer: Zhao Guangjun
Client: Ganus Xirong Cultural Tourism Development Co, Ltd.
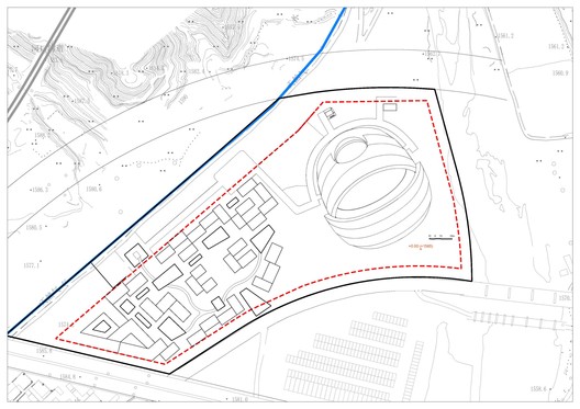
Architectural Engineering Interests: The entire layout is divided in two sections representing the exhibition and show. Contains theater with an open atrium in the center allowing natural lighting and an “eye” for a scenic view of the landscape. Laser shows are held utilizing a show pool between the stage and audience area. The theater is covered by huge arched roofs made up of modified metal plate cladding and material similar to local traditional elements of a nearby ancient village to blend culture with modernity.

leave a comment