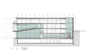
Helsingør Psychiatric Hospital – Helsingør, Denmark

Building: Helsingor Psychiatric Hospital
Location: Dryehaveve 48, 3400 Helsingor, Denmark
Completed: 2006
Architect: PLOT
Engineers: Moe og Brodsgaard
Programming consultans: David Mollerup, Lise Weile
AE Intrests: health, hospital, safe, control, protection
,,,,ea
Sundial Bridge at Turtle Bay – Redding, California, U.S.

[1]
Building: Sundial Bridge at Turtle Bay
Location: Redding, California, USA
Completed: 2004
Architect: Santiago Calatrava
Structural Engineer: Calatrava
Erection Engineers: Buckland and Taylor
AE Interests: bridge never touches the water making it environmentally sensitive, functional sun dial, structural glass deck, cantilever spar cable-stayed bridge
—-
P&C Department Store – Cologne, Germany

Building: P&C Department Store
Location: Cologne, Germany
Completion: 2005
Architect: Renzo Piano Building Workshop
Structural Engineer: Knippers & Helbig
Contractor: Hotchief Construction
AE Interests: The building’s exterior is a glass facade and it’s main structure is made out of wooden arches that form a dome shape.
—-ea
Katehaki Bridge – Athens, Greece

[1]
Building: Katehaki Bridge
Location: Athens, Greece
Completed: 2004
Architect: Santiago Calatrava
Structural Engineer: Calatrava
AE Interests: steel structure, single cantilever pillar from which 14 cables used to suspend bridge over the street
—-ea
Edited 4/2015 EA
Meydan Retail Complex and Multiplex-Istanbul, Turkey

Building: Meydan Retail Complex and Multiplex
Location: Istanbul, Turkey
Completed: 2007
Architect: F.O.A.
AE Interest: Underground parking, roof is covered with gardens and extensive vegetation
—-ea
Athens Olympic Stadium – Athens, Greece

Building: Athens Olympic Stadium
Location: Athens, Greece
Completed: 1982
Renovated: 2004
Architect: Santiago Calatrava
Structural Engineer: Calatrava, SKM Anthony Hunts
AE Interests: “bent leaf” polycarbonate glass rooftop covers over 90% of seating, roof has total weight of 19,000 tons, roof can withstand 120 km/h winds, 75,000 seating capacity
—-
Zollverein Kohlenwäsche – Essen, Germany
Building: Zollverein Kohlenwäsche
Location: Essen, Germany
Status: Completed 2007
Architect: OMA / Heinrich Böll Architekt BDA DWB
AE Interest: Exposed structural members and HVAC systems.
—-
Edited 4/2015 EA
Beehive – Culver City, California, U.S.

Building: Beehive
Location: 8522 National Blvd., Culver City, California
Completion: 1998
Architect: Eric Owen Moss Architects
Structural Engineer: Kurily Szymanski Tchirkow Inc.
AE Interest: structure, curves, natural light
—-
Allianz Arena – Munich, Germany

Building: Allianz Arena
Location: Munich, Germany
Address: Werner-Heisenberg-Allee 25, 80939 Munich, Germany
Completed: 2005
Architect: Herzog and de Meuron
Structural Engineer: Arup
Lighting Design: Werning Tropp Schmidt
AE Interests: Illuminated facade, transparant and translucent roof and facade made of ethylenetetrafluoroethylene (0.2 millimeters thick)
—-
B&B Italia Offices – Lombardy, Italy

Building: B&B Italia Offices
Location: Strada Provinziale, Novedrate, Italy
Completion: 1973
Architect: Studio Piano & Rogers
Structural Engineer: F. Marano
AE Interests: To make future expansions more easy, light/self supporting materials were used for the building’s structure and the walls and light fittings are mobile.
—-
Sjakket Youth Club – Copenhagen, Denmark

Architects: PLOT
Location: Skaffervej 4-6, 2400 Copenhagen, Denmark
Completed: 2007
Client: Sjakket Youth Club, Realdania
Partner in Charge: Bjarke Ingels
Collaborator: Julien De Smedt
Project Leader: Sophus Sobye
Project Architect: Sophus Sobye
AE Interests: youth house, sports hall, hidden play area
—-
Hermitage Guggenheim – Las Vegas, Nevada, U.S.

Building: Hermitage Guggenheim (Exhibition Space)
Location: 3355 Las Vegas Blvd S 89109, Las Vegas, Nevada
Status: Closed in 2008
Architect: OMA
Consultants: Martin & Martin, Martin & Peltyn, Arup, MSA Engineering, Skyska & Hennessy, Rolf Jensen
AE Interest: Rotating walls to change the size and shape of the museum spaces.
….ea
Maritime Youth House – Copenhagen, Denmark

Building:
Maritime Youth House
Location:
Amager Strandvej 13, DL-2300 Copenhagen, Denmark
Completed:
2004
Architect: PLOT (JDS+BIG)
Project Team: Julien De Smedt, Bjarke Ingels
Consultants: Birch & Krogboe
AE Interests: youth house, wood deck, boat house, playground
—-
Sarphatistraat Offices – Amsterdam,The Netherlands

Building: Sarphatistraat Offices
Location: Amsterdam, The Netherlands
Completion Date: June 2000
Architect: Steven Holl Architects
Structural engineers: Ingenieursgroep† Van Rossum
Contractor: VOF Van Eesteren
AE Interest: perforated walls for availability of passages & storage, overlapping interior spaces, geometric design, design reflects “Merger Sponge” principal, use of return air grilles.
—-
McCormick Tribune Campus Center – Chicago, Illinois, U.S.

Building: McCormick Tribune Campus Center
Location: 3201 S State St, Chicago, IL 60616
Status: Completed 2003
Architect: OMA
AE Interest: Stainless steel tube encasing elevated track with concrete slab buffering noise to student center below.
—-
Knut Hamsun Center – Hamaröy, Norway

Building: Knut Hamsun Center
Location: Hamaröy, Norway (above the Arctic Circle, near the village of Presteid of Hamarøy)
Completion Expected: 2009
Architect: Steven Holl Architects
Design Development
Project Architect: Erik Fenstad
Project Team:
Gabriela Barman-Kraemer
Yoh Hanaoka
Justin Korhammer,
Anna Müller
Audra Tuskes
Structural Engineer: Guy Nordenson and Associates
Construction Documents
Associate Architects: LY Arkitekter AS
Project Team:
Francesco Bartolozzi
Ebbie Wisecarver
Structural Engineer: Rambøll Norge
Mechanical Engineer: Rambøll Norge
Mechanical Engineer: Ove Arup
Lighting Consultant: L’Observatoire International
Lighting consultant: Vesa Honkonen Architects
Landscape Architect: Landskapsfabikken
AE Interests: uses design/materials reflected by Norwegian culture, dramatic interior lighting effects based on the time of year, intuitive layout, environmental sustainability, angular geometry
For more info:
http://www.arcspace.com/architects/Steven_Holl/hamsun_museum/index.html
—-
Casa da Música – Porto, Portugal

Name: Casa da Música
Location: Porto, Portugal
Status: Competition: 1999
Completed: 2005
Architect: OMA
Structural Engineer: Arup / AFA Lda
AE Interest: Shape played a huge factor in the creation of the Casa Da Musica because it had to enhance the acoustical integrity of the concert hall without taking shape of a plain box.
—-
Le Clos Jordan Winery- Lincoln, Ontario, Canada

Building: Le Close Jordan Winery
Location: Lincoln, Ontario, Canada
Completion: 2006
Architect: Gehry Partners, LLP
Structural Engineer: Yolles Partnership Inc.
Landscape Architect: Janet Rosenberg & Associates
Planning Consultant: BLS Planning Associates
AE Interests: A gentle flowing metallic structure, the winery reflects its natural surroundings and the sky.
….
The New York Times Building – New York, New York, U.S.

Building: The New York Times Building
Location: 200 Park Avenue, New York, New York
Architects: Renzo Piano Building Workshop & FXFOWLE Architects
Structural Engineer: Thornton Tomasetti
MEP Engineer: WSP Flack + Kurtz
Construction Manager: AMEC
AE Interests: 52-storey glass and steel skyscraper. The building’s design shows the steel beams and columns that provide structural support – 95% of the structural steel contains recycled materials.
—-
Serpentine Gallery Pavilion- London, U.K.

Building: Serpentine Gallery Pavilion
Location: London, United Kingdome
Completion: 2008 (temporary)
Architects: Frank Gehry, Samuel Gehry
Engineers: Arup
AE Interests: Part amphitheatre, part promenade, the pavilion is a wooden timber structure that protects the inerior from wind and rain, yet provides shade and sunlight to pedestrans.
….
DZ Bank- Berlin, Germany
Building: DZ Bank
Location: Berlin, Germany
Completion: July 2001
Architect: Gehry Partners, LLP
Engineer: Schlaich Bergermann and Partner
AE Interests: A curving glass floor and ceiling gives this building natural light that floods throughout the bank.
—-
Corcoran Gallery of Art- Washington D.C., U.S.

Building: Corcoran Gallery of Art
Location: Washington D.C.
Status: Addition unbuilt
Architect: Gehry Partners, LLP
Project Designer: Edwin Chan
Renovation Architect: Smith Group
Structural Engineer: John A. Martin & Associates, Inc.
Mechanical/Electrical/Plumbing: Cosentini Associates
AE Interests: The new atrium creates a unifying element between the old stone building and the addition’s boisterous appearance.
….
Edited 4/2015 EA
Broad Contemporary Museum – Los Angeles, California, U.S.

Building: Broad Contemporary Art Museum
Location: 5905 Willshire Boulevard, Los Angeles, California
Completion: 2008
Architect: Renzo Piano Building Workshop
Structural Engineering: Arup
Civil Engineering: KPFF
Cost Consultant: Davis Langdon
AE Interests: An expansion to the Los Angeles Contemporary Art Museum. Industrial design whose main materials are stone and steel. Three-storey building with an H-plan design.
—-
MARTa Herford- Herford, Germany
Building: MARTa Herford
Location: Herford, Germany
Completion: 2005
Architect: Gehry Partners, LLP
Design Partner: Frank Gehry
Project Partner: Randy Jefferson
Project Designer: Edwin Chan
Project Architect: Kamran Ardalan
Structural Engineer: Bollinger + Grohmann
Mechanical Engineer: Construct
Lighting Consultant: AG Licht
AE Interests: The curvature of bricks and steel reflect the museum’s aesthetic and artistic purpose.
—-ea
Bluemoon Hotel- Groningen, The Netherlands

Building: Bluemoon Hotel
Location: Groningen, The Netherlands
Completed: 2001
Architect: F.O.A.
Architect of Record: Artes
AE Interests: Repetitive pattern of aluminum openable panels.
—-ea
Der Neue Zollhof- Düsseldorf, Germany

Building: Der Neue Zollhof
Location: Düsseldorf, Germany
Completion: 1999
Design Principle: Frank O. Gehry
Project Principal: Randy Jefferson
Project Designer: Craig Webb
Project Architects: Terry Bell, Tomaso Bradshaw
AE Interests: Curvilinear structures constructed of concrete flat slab and brick with punched window openings on the exterior facade provide a unique shape with natural ventilation.
—-ea
Awaji Yumebutai – Hyogo, Japan

Building Name: Awaji Yumebutai
Location: Hyogo, Japan
Completion: 2000
Architect: Tadao Ando
AE interests: intersecting geometric parts, built into the land
de Young Museum – Golden Gate Park, San Francisco, California, U.S.
Building: de Young Museum
Location: Golden Gate Park, San Francisco, California
Architect: Herzog and de Meuron
Structural Engineers: Rutherford & Chekene
MEP: Arup
Completed October 2005
AE interests: perforated copper exterior skin, natural lighting. `
More Information
—-ea
The Ohr-O’Keefe Museum – Biloxi, Mississippi, U.S.

Building: The Ohr-O’Keefe Museum
Location: Biloxi, Mississippi
Completed: 2004
Design Principal: Frank O. Gehry
Project Principal: Randy Jefferson
Project Designer: Craig Webb
Project Architect: Jeff Wauer
AE Interests: A series of pavilions built around trees to create a juxtaposition of culture, history, and art.
—-ea
Chichu Art Museum – Kagawa, Japan

Building: Chichu Art Museum
Location: Kagawa, Japan
Completed: 2004
Architect: Tadao Ando
AE Interests: despite being built in the ground, its use of natural light illuminates the exhibits; was designed to show “the relationship between human and nature.”
Bird’s Nest – Olympic Park, Beijing, China





Image source: 1, 2, 3, 4, 5 (Tekla)
Building: Bird’s Nest Olympic Stadium
Location: Olympic Park, Beijing, China
Architect: Herzog and de Meuron
Structural Engineer: Arup
Completed 2008
AE interests: complex structural form, built to withstand earthquakes. Structural steel tube shapes.
For more information on the Bird’s Nest click here.
—-ea
Emergency Services Centre – St Gallen, Switzerland

Building: Emergency Services Center
Location: St. Gallen, Switzerland
Completed: 1998
Architect: Santiago Calatrava
Structural Engineer: Calatrava
AE Interests: underground building, elliptical glass roof, first use of moveable roof to control daylight, sculpture appearance set in a historic background
—-
Gemini Residence- Copenhagen, Denmark

Building: Gemini Residence
Location: Copenhagen, Denmark
Completed: 2005
Architect: MVRDV
Structural Engineer: Peter Lind
Construction: NCC Construction
AE Interests: Renovated cylindrical silos, natural light
—-ea
Municipal Police Headquarters-La Villajoyosa, Spain

Building: Municipal Police Headquarters
Location: La Villajoyosa, Spain
Completed: 2004
Architect: F.O.A.
Architect of Record: Antonio Marquerie
Structural Engineer: NB35
Service Engineer: Angel Garrido
AE Interests: Compact design style, building designed to split into three job specific bands, skylights used for natural lighting.
,,,,ea
Island Brygge Harbor Baths – Copenhagen, Denmark

Building:
Island Brygge Harbor Baths
Location:
Island Brygge 9, 2300 Copenhagen, Denmark
Completed:
2003
Architect: PLOT (now JDS and BIG)
Project Architect: Jakob Møller
Technical Engineer: Birch og Krogboe
Constructed Area: 2,500 mô
AE Interests: playground, swimming pool, bath, harbo
—-ea
Burj Al Maydan- Dubai, United Arab Emirates

Address: Dubai, United Arab Emirates
Architect: Morphosis
Structural Engineer: Thornton Tomasetti Group, Inc.
MEP Engineer: IBE Consulting Engineers
AE Interest: Structure, Curve of the building, plaza
….
VM Houses – Copenhagen, Denmark
Building: VM Houses
Location:
Ørestads Boulevard 57-59, 2300 Copenhagen, Denmark
Completed:
2005
Architect: PLOT (JDS+BIG)
Project Architect: Thomas Christoffersen
Engineers: Moe & Brodsgaard
Construction: Hopfner
AE Interests: landscape, apartments, each apartment is different, lighting
—-ea
Mountain Dwellings – Copenhagen, Denmark

[1,2,3,4]
Building: Mountain Dwellings
Location: Ørestads Boulevard 55, 2300 Copenhagen, Denmark
Completed: 2008
Architect: BIG
Project Architect: Jakob Lange
Engineering: Moe & Brodsgaard
Construction: DS Elcobuy A/S/PH Montage
AE Interests: Apartments, Parking, Residential, roof gardens, symbiotic relationship of parking and living
—-ea
MORE ABOUT: Mountain Dwellings
Updated by Miguel Yapur, July 2020
Greek Theatre – Siracusa, Italy

[1,2,3,4]
Building: Greek Theatre
Location: Siracusa, Italy
Completed: 2009
Architect: Massimiliano and Doriana Fuksas
AE Interests: “Concave blade”, its reflective surface includes the audience
….
Updated by Miguel Yapur, July 2020
San Paolo Parish Complex- Foligno, Italy

[1,2,3,4]
Building: San Paolo Parish Complex
Location: Foligno, Italy
Completed: 2009
Architect: Massimiliano and Doriana Fuksas
Structural Engineering: Gilberto Sarti and A.I. Engineering
General Contractor: Ediltecnica Spa
Lighting Design: Iguzzini Illuminazione
AE Design: pure geometry, two rectangles inserted into one another make up the larger structure which is connected to a long and low rectangle, concrete structure,
—-ea
Updated by Miguel Yapur, July 2020
New Trade Fair- Milano, Italy
Building: New Trade Fair
Location: Milano, Italy
Completed: 2005
Architect: Massimiliano and Doriana Fuksas
General Contractor: Astaldi Spa, Vianini Spa, Pizzarotti Spa
Structures Consultant: Mero Gmbh & Co.
Structural Engineers: Icom Engineering, Bemo Systems, and Permasteelisa spa
Lighting Engineer: Lampada Lavinia
AE Interests: unitary complex with simple geometry, reflective steel panels
—-
Updated by Miguel Yapur, July 2020
Armani/Ginza Tower- Tokyo, Japan

[1,2,3,4]
Building: Armani/Ginza Tower
Location: Tokyo, Japan
Completed: 2007
Architect: Massimiliano and Doriana Fuksas
Lighting Design: Speirs & Major Associates
Interior Architecture: Fliippo Birch, Ana Gugic, Maria Lucrezia Rendace
Contractor: Ishimaru & Nishimori
AE Interests: glass tower with cascading lighted leaves mirroring reflections of the sky and surrounding buildings
Updated by Miguel Yapur, July 2020
Peace Peres House – Tel Aviv, Israel

[1,2,3,4]
Building: Peace Peres House Jaffa
Location: Jaffa, Tel Aviv, Israel
Architect: Massimiliano and Doriana Furksas
Interior Design: Fuksas
Engineering Consultant: Rokach-Ashkenazi
Structural Consultant: Kal-Binian Ltd
Contractor: Rom Geves Ltd
Facade Engineer: Allumier
Site Work Supervisor: Micheal Schaffer
Landscape Architect: TEMA
AE Interests: the parallelpiped building is created by the layering of various shaped glass and concrete placed on a monolithic base
—-
Updated by Miguel Yapur, July 2020
Twin Towers- Vienna, Austria


[1,2,3,4]
Building: Twin Towers
Location: Vienna, Austria
Completed: 2001
Architect: Massimiliano Fuksas
Engineer: Buro Thumberger + Kressmeier
Facade Engineer: Götz GmbH, Mero GmbH & Co. KG
AE Interests: the building is two elements but are connected almost the entire height and a double glass façade
—-
Updated by Miguel Yapur, July 2020
Ferrari Headquarters and Research Centre – Maranello, Italy

[1,2,3,4]
Building: Ferrari Headquarters and Research Centre
Location: Maranello, Italy
Completion: 2004
Architect: Massimiliano and Doriana Fuksas
Structural Engineer: Ing. Gilberto Sarti
Engineering: AI Engineering
Contractor: Cogei Construction
AE Interests: designed to create an environment that would bring the employees closer to nature through the use of water, bamboo, ecological materials, and biotechnology, and is located between two notable buildings the “Wind Tunnel” by Renzo Piano and the “Nuova Officina Meccanica” designed by Marco Visconti
—-
Video: [1]
Updated by Miguel Yapur, July 2020
EUR Convention Center and Hotel ‘The Cloud’ – Rome, Italy

[1,2,3,4]
Building: EUR Convention Center and Hotel ‘The Cloud’
Location: Rome, Italy
Completion: 2016
Architect: Massimiliano Fuksas
Interior design: Fuksas Design
Engineering: Plans: A. I. Engineering, Torino
Structures: Studio Majowiecki; Studio Sarti
Acoustics: XU – Acoustique, Parigi, A. I. Engineering, Torino
Lighting Consulting: Speirs & Major Associates
Project Manager: Lorenzo Accapezzato
AE Interests: construction changes completely depending on the viewpoint of the observer, a large translucent container containing a suspended cloud that will be used as a conference room
….
Updated by Miguel Yapur, July 2020
Zenith Music Hall- Strasbourg, France

[1,2,3,4]
Building: Zenith Music Hall
Location: Strasbourg, France
Completion: 2008
Architect: Massimiliano and Doriana Fuksas
General Contractor: PERTUY Construction
Structural and Mechanical Engineers: BETOM-Ingenierie and Z&M Zwahlen & Mayr
Scenography: A& T
Acustical: ALTIA
AE Interests: an orange autonomous façade created by dynamic layering and rotating, impeccable acoustics, light effects created
—-
Updated by Miguel Yapur, July 2020
Samitaur – Culver City, California, U.S.

[1,2,3,4]
Building: Samitaur
Location: 3457 S. La Cienega Blvd., Culver City, California
Completion: 1996
Architect: Eric Owen Moss Architects
Structural Engineer: Antieri & Associates
AE Interests: raised structure, use of shade and natural light
—-
Articles: [1, 2, 3, 4, 5, 6, 7]
Video: [1]
Updated by Miguel Yapur, July 2020
California Academy of Sciences – San Francisco, California, U.S.

[1,2,3,4]
Building: California Academy of Sciences
Location: 55 Music Concourse Drive, Golden Gate Park, San Francisco, California
Completed: 2008
Architect: Renzo Piano Building Workshop, Stantec Architecture
Engineering and Sustainability Consulting: Arup
Civil Engineering: Rutherford & Chekene
Living Roof: Rana Creek
Landscape Architecture: SWA Group
General Contractor: Webcor Builders
AE Interests: sustainability, living roof, natural ventilation, natural lighting
—-
Udpated by Miguel Yapur, July 2020
Padre Pio Pilgrimage Church – San Giovanni Rotondo, Italy

[1,2,3,4]
Building: Padre Pio Pilgrimage Church
Location: San Giovanni Rotondo, Italy
Completed: July 2004
Architect: Renzo Piano Building Workshop
Structural: Favero & Milan Ingegneria
Consulting engineers: Arup
Wood construction: Merk Holzbau
Acoustics: Helmut Müller, Germany
AE Interests: structure, form, technical complexity, stone arches, wood structure
—-
Updated by Miguel Yapur, July 2020
San Nicola Stadium – Bari, Italy

[1,2,3,4]
Building: San Nicola Stadium
Location: Bari, Italy
Completed: 1990
Architect: Renzo Piano Building Workshop
Structural: Arup, M. Milan, Studio Vitone & Associati
AE Interests: structure, “petal” design, safety conditions, concrete
—-
Updated by Miguel Yapur, July 2020
Church of Light – Osaka, Japan

[1,2,3,4]
Building: Church of Light
Location: Osaka, Japan
Completion: 1989
Architect: Tadao Ando
AE Interests: reinforced concrete, light enters from behind the altar from a cross cut in the concrete wall that extends to the edges vertically and horizontally, emptiness and spiritual feeling
Updated by Miguel Yapur, July 2020
Burj Khalifa – Dubai, United Arab Emirates

[1,2,3,4]
Building: Burj Khalifa (formerly Burj Dubai)
Location: Dubai, United Arab Emirates (U.A.E.)
Completed: 2009
Architect: Skidmore, Owings and Merrill (SOM)
Stuctural Engineer: SOM (Bill Baker and Ahmad Abdelrazaq)
MEP: SOM
Interior Design: SOM
General Contractor: Samsung Corporation / Dubai Contracting Company LLC
Construction Manager: Turner International
Acoustical / Audio Visual / Telecommunications: Pelton Marsh Kinsella
Facade Maintenance: Lerch, Bates & Associates Inc., Facade Access Consulting, Citadel Consulting
Geotechnical: Hyder International
Landscape: Cracknell Landscape Design LLC
Lighting: Fisher Marantz Stone
Wind Engineering: RWDI Inc.
AE Interests: skyscraper, currently (2020) the world’s tallest building at 2,717 feet (818 meters). Conceptually designed as a giant cantilever. Concrete core, 3 primary concrete flanges, with stepping masses around the core (spiraling toward the top). `
Building Case Study – MoreAEDesign
—-ea
Articles: [1, 2, 3, 4, 5, 6, 7, 8]
Updated by Miguel Yapur, July 2020
South East Coastal Park-Barcelona, Spain

[1,2,3,4]
Building: South East Coastal Park
Location: Barcelona, Spain
Completed: 2004
Architect: Foreign Office Architects
Structural Engineer: Obiol, Moya y Asociados SL
Project Manager: Europrincipia
Constructor: Corsan-Corviam
Landscape Architect: Teresa Gail
AE Interests: Designed to control the view, certain areas protected from the prevailing south wind.
—-
Updated by Miguel Yapur, July 2020
D38 Zona Franca – Barcelona, Spain

[1,2,3,4]
Building: D38 Zona Franca
Location: Barcelona, Spain
Completed: 2011
Building 1 Architect: Arata Isozaki architects
Building 2 Architects: Foreign Office Architects
Structural Engineer: BOMA S.L.(Brufau, Obiol, Moya y Asociados)
Landscape Engineer: Arquitectura Agronomia, Teresa Gali
Contractor: Edifica SL
AE Interests: Structural design allows building to be suspended like a cantilever in areas
—-
Videos: [1]
Updated by Miguel Yapur, July 2020
University of Phoenix Stadium-Glendale, Arizona, U.S.

[1,2,3,4]
Building: University of Phoenix Stadium
Location: Glendale, Arizona
Completed: 2006
Architect: Peter Eisenman and HOK Sport
Project Architects: Richard Rosson and Jeff Spear
Project Designers: Marta Caldeira, Pablo Lorenzo-Eiroa
Project Manager: Jack Boyle
Roof Engineer: Walter P. Moore
Structural Engineer: TLCP Structural
Civil Engineers: Evans, Kuhn and Associates, and MX Sports Engineers, Inc.
AE Interests: moveable football field, exterior shape modeled after a barrel cactus, fully retractable roof.
—-
Updated by Miguel Yapur, July 2020
Aronoff Center for Design and Art-Cincinnati, Ohio, U.S.

[1,2,3,4]
Building: Aronoff Center for Design and Art
Location: University of Cincinnati, Cincinnati, Ohio
Completed: 1996
Architect: Peter Eisenman
Structural Engineer: Lorenz & Williams
AE Interests: excellent use of geometric forms, interesting shape caused structural challenges.
—-
Updated by Miguel Yapur, July 2020
Columbus Convention Center-Columbus, Ohio, U.S.

[1,2,3,4]
Building: Columbus Convention Center
Location: 400 N High Street, Columbus, OH 43215
Completed: 1993
Architect: Peter Eisenman
Construction manager: Turner/Smoot/Zunt
Structural Engineer: Lorenz & Williams
Civil Engineer: Moody/Nolan
Lighting Engineer: Jules Fisher & Paul Marantz
Acoustical Engineer: Jaffe Acoustics
AE Interests: angled façade, overhead view resembles trains in a train yard.
—-
Updated by Miguel Yapur, July 2020
3555 Hayden – Culver City, California, U.S.

[1,2,3,4]
Building: 3555 Hayden
Location: 3555 Hayden Ave., Culver City, California
Completion: 2007
Architect: Eric Owen Moss Architects
Structural Engineer: Englekirk Partners Consulting Structural Engineers
Glulam Supplier: Structurlam Products Ltd
General Contractor: Samitaur Constructs
AE Interests: structure, site, sloped glass, glulam structural beam
—-
Awards: WoodWorks California 2010 Commercial Wood Design Award,
AIACC Achievement Award, 2008
Updated by Miguel Yapur, July 2020
Stealth – Culver City, California, U.S.

[1,2,3,4]
Building: Stealth
Location: 3530 Hayden Ave., Culver City, California
Completion: 2002
Architect: Eric Owen Moss Architects
Structural Engineer: Kurily Szymanski Tchirkow Inc.
Electrical Engineer: Silver, Roth, and Associates
Mechanical Engineer: Antieri and Associates
AE Interests: structure, form, angles, space
—-
Article: [1]
Video: [1]
Updated by Miguel Yapur, July 2020
Museum of Scotland – Edinburgh, Scotland, U.K.

[1,2,3,4]
Building: Museum of Scotland
Location: Edinburgh, United Kingdom
Completion: 1998
Cost: $114 million
Architects: Benson and Forsyth
Main Contractor: Bovis Construction
Structural Engineer: Anthony Hunt Associates
Services Engineer: Waterman Gore
Lighting Consultant: Kevin Shaw
Project Manager: Turner & Townsend Project Management
Landscape Architect: Turnbull Jeffrey Partnership
AE Interests: An extension to the older Royal Museum of Scotland, the building is somewhat castle like,symbolic of the protection it gives to the history contained within it. The view from the top is pretty cool too if you ever get the chance…
—-
Updated by Miguel Yapur, July 2020
Kilometro Rosso – Bergamo, Italy

[1,2,3,4]
Building: Kilometro Rosso
Location: Bergamo, Italy
Completed: 2007
Cost: $30 million
Architect: Jean Nouvel
Engineering: CED Ingegneria
AE Interests: Known as the ‘Red Kilometer’, the main building wall serves a dual purpose of making the building stand out, while protecting the rest of the complex from the noise of passing vehicles.
,,,,ea
Updated by Miguel Yapur, July 2020
U.S. Census Bureau Headquarters – Suitland, Maryland, U.S.

[1,2,3,4]
Building: U.S. Census Bureau Headquarters
Location: 4700 Silver Hill Rd, Suitland, Maryland
Completion: 2007
Cost: $331 million
Architect: SOM
Design/Build Architect: HKS Architects, Inc
Interior Architect: Metropolitan Architects & Planners
Structural Design: SOM
Civil Engineer: Wiles Mensch Corporation
MEP Engineer: SOM
Contractor: Skanska USA Building Inc.
Design/Build Structural Engineer: Walter P. Moore & Associates
Design/Build MEP Engineer: Southland Industries / GHT Limited
Planning/Landscape & Environmental Analysis: EDAW, Inc. (AECOM)
Curtain Wall Consultant: CDC, Inc.
Lighting Design: Domingo Gonzalez Associates, Cline, Bettridge, Bernstein Lighting Design
Audio, Visual & Acoustical Consulting: Polysonics, Inc.
AE Interests: minimal site impact, water reclamation, recycled building materials, solar collection, underfloor air distribution, daylighting, solar shading, green roofs
—-
Updated by Miguel Yapur, July 2020
Gasometer City – Vienna, Austria

[1,2,3,4]
Building: Gasometer City
Location: Vienna, Austria
Completed Redesign: 2001
Cost: $26.8 million
Architect: Jean Nouvel
Structural Consultants: Fritsch & Chiari
AE Interests: Re-used existing old industrial buildings to create a new, modern residential environment.
—-
Updated by Miguel Yapur, July 2020
Lyon Opera House – Lyon, France
Building: Lyon Opera House
Location: Lyon, France
Completed Redesign: 2003
Cost: $67 million
Architect: Jean Nouvel
Structural Consultant: Kephren S.A.
AE Interests: Redevelopment of the old opera house, built within the shell of the original building. Named after the Architect.
—-
Updated by Patrick Wray, February 2025
Harvard University Northwest Science Building – Cambridge, Mass.

[1,2,3,4]
Building: Harvard University – Northwest Science Building
Location: Cambridge, Massachusetts
Completion: 2008
Architect: SOM
Structural Design: SOM
AE Interests: green roof, daylighting, HVAC zoning, curtain wall
—-
Awards: Award of Merit for Structural Systems Design (ASCE) – (AEI), Most Innovative Project (ASCE) – (AEI)
Updated by Miguel Yapur, July 2020
Cultural and Congress Center – Luzern, Switzerland

[1,2,3,4]
Building: Cultural and Congress Center
Location: Europaplatz 1, 6005 Luzern, Switzerland
Completed: 2000
Cost: $120 million
Architect: Jean Nouvel
Structure Consultant: Elektrowatt Ingenieurunternehmung AG Pluss Und Meyer Bauingenieure AG
Acoustic Engineer: Russell Johnson
AE Interests: Large overhanging roof. Channels bring the neighboring lake inside the building.
—-
Updated by Miguel Yapur, July 2020
Guthrie Theater – Minneapolis, Minnesota, U.S.

[1,2,3,4]
Building: Guthrie Theater
Location: 818 South 2nd Street, Minneapolis, MN 55415
Completed: 2006
Cost: $125 million
Architect: Jean Nouvel
Structural Engineering: Ericksen & Roed
AE Interests: Won an Award of Excellence for Project of the Year from the Post-Tensioning Institute.
—-
Updated by Miguel Yapur, July 2020
DR Concert Hall – Copenhagen, Denmark

[1,2,3,4]
Building: DR Concert Hall
Location: DR Byen, Ørestad, Copenhagen, Denmark
Completed: January 2009
Cost: $580 million
Architect: Jean Nouvel
Engineering: NIRAS
Lighting Design: AIK
AE Interests: The theatre itself is supported 15m above ground by just 6 columns and 3 stairwells and contains no parallel lines.
—-
Updated by Miguel Yapur, July 2020
Torre Agbar – Barcelona, Spain

[1,2,3,4]
Building: Torre Agbar
Location: Avinguda Diagonal, 08018, Barcelona, Spain
Completed: July 2005
Architect: Jean Nouvel
Structural Engineer: Brufau/Obiol SA, Gepro
Engineer: Gepro BOMA, Master Ingeniría
Contractor: Dragados, Axima, Emte
Cost: $130 million
AE Interests: 4500 window openings with LEDs to illuminate the building at night.
—-
Updated by Miguel Yapur, July 2020
Arab World Institute – Paris, France
Building: Arab World Institute (Institut du Monde Arabe)
Location: 1 Rue des Fossés Saint-Bernard, 75005 Paris, France
Completed: 1987
Cost: $47.5 million
Architect: Jean Nouvel
Contractor: SETEC Bâtiment
Structural Engineer: Arcora
AE Interests: Aga Khan Award for Architecture; this building started Jean Nouvel’s acclaim. A matrix of photosensitive, mechanical apertures open and close throughout the day to control the light level inside the building. Steel structure, custom exposed elevators. Shading, daylighting, cultural expression.
201 Bishopsgate and The Broadgate Tower – London, U.K.

[1,2,3,4]
Building: 201 Bishopsgate and The Broadgate Tower
Location: 201 Bishopsgate, London, United Kingdom
Completed: 2008
Architect: SOM
Structural Design: SOM
Contractor: Bovis Lend Lease
Facade Engineer: Permasteelisa Group
AE Interests: expressed structural bracing, construction process over railway tracks
—-
Awards: CTBUH Best Tall Building Europe 2009 Winner
Updated by Patrick Wray, February 2025
University of California Merced Kolligian Library – Merced, California, U.S.

[1,2,3,4]
Building: University of California Merced Kolligian Library
Location: Merced, California
Completion: 2005
Architect: SOM, Fernau & Hartman
Structural Design: SOM
Client: University of California Merced
AE Interests: orientation, sustainability, daylighting, louvers
,,,,ea
Updated by Miguel Yapur, July 2020
Poly Real Estate Headquarters – Guangzhou, China

[1,2,3,4]
Building: Poly Real Estate Headquarters
Location: Guangzhou, China
Completed: 2007
Architect: SOM
Structural Engineer: SOM
MEP Engineer: WSP, Flack + Kurtz
Project Manager: SOM
Client: Poly Real Estate Group
AE Interests: sustainability, structural, solar shading, offset core, daylighting, natural ventilation; floor-by-floor mechanical systems, under floor air distribution, green roof, external structural dia-grid
….
Updated by Miguel Yapur, July 2020
Nagaragawa Convention Center – Gifu, Japan

[1,2,3,4]
Building: Nagaragawa Convention Center
Location: Gifu, Japan
Completion: 1995
Architect: Tadao Ando
AE Interests: very recognizable and unique egg shape, adjustable floors and walls
Updated by Miguel Yapur, July 2020
Umbrella – Culver City, California, U.S.

[1,2,3,4]
Building: Umbrella
Location: 3535 Hayden Ave., Culver City, California
Completion: 1999
Architect: Eric Owen Moss Architects
Structural Engineer: Advanced Structures Incorporated
AE Interests: structure, laminated glass panels, multiple uses
—-
Articles: [1]
Updated by Miguel Yapur, July 2020
WTC Transportation Hub – Manhattan, New York, U.S.

[1,2,3,4]
Building: World Trade Center Transportation Hub
Location: Manhattan, New York
Completion: 2016
Architect: Santiago Calatrava
Architect of Record: Downtown Design Partnership, a joint venture of DMJM + Harris, STV Group Inc., and Parson’s Transportation
Engineering Team: Parsons; William Nicholas Bodouva & Associates; Severud Associates Consulting Engineers, P.C.; Jaros, Baum & Bolles; and Mueser Rutledge Consulting Engineers
AE Interests: Giant bird-like form like one being released from a child’s hands, symbol of hope, columns of light, both beauty and functionality, steel and glass design `
—-
Updated by Patrick Wray, February 2025
House in Chicago – Chicago, Illinois, U.S.

[1,2,3,4]
Building: House in Chicago
Location: Chicago, Illinois
Date Completed: 1997
Architect: Tadao Ando Architects & Associates
AE Interests: structure, materials, lighting, residence
,,,,ea
Updated by Miguel Yapur, July 2020
Morimoto Restaurant – New York, New York, U.S.

[1,2,3,4]
Building: Morimoto Restaurant
Location: 88 10th Avenue, New York, New York
Date Completed: 2005
Architect: Tadao Ando Architects & Associates, Goto Design
Client: Starr Restaurant Organization
Structural Consultant: Lera Consulting Structural Engineers
Contractor: Certified Construction
Facade, Lighting Engineer: Electrix
AE Interests: structure, materials, restaurant
,,,,ea
Updated by Miguel Yapur, July 2020



























leave a comment