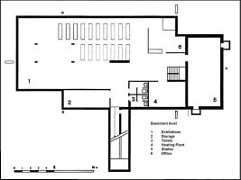
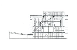
Bishan Cultural and Art Center – Bishan Qu, China



[ 1, 2, 3 ]
Building: Bishan Cultural and Art Center
Location: Bishan Qu, China
Completed: 2016
Architect: Tanghua Architect & Associates
Acoustic Consultants: Lin Taiyong & Zhang Sanming
AE Interests: The 3 masses are a response to the surrounding landscape. A “valley” formed between the 3 buildings creating a gathering space for visitors. The curtain wall protects from the sunlight coming from the west. The curtain wall is made of glass, metal grilles, and aluminum mesh in the Chinese traditional pattern called ice crack.
Articles: 1
Mjøstårnet – Brumunddal, Norway
Building: Mjøstårnet (pronounce: Myoo-star-net)
Location: Brumunddal, Norway
Architect: Voll Arkitekter
Builder: AB Invest AS
Contractor: HENT AS
Subcontractor (Structural Timbers): Moelven Limtre
Year: 2019
AE Interests:
World’s current tallest timber-framed building (280′ tall). Nicknamed “Plyscraper”, built almost entirely out of wood. Sustainably built by using local renewable resources. Wood naturally stores CO2 throughout it’s life, which contributes to it’s sustainability. Designed to withstand a complete burnout. Almost all interior structural timber left exposed to contribute to interior design `
Nanjing Performing Arts Center – Nanjing, China



[ 1, 2, 3 ]
Building: Nanjing Performing Arts Center
Location: Nanjing, China
Completed: 2009
Architect: Preston Scott Cohen, Amit Nemlich, & Atelier Zhang Lei (Chinese Architect of Record)
AE Interests: Concrete roof made from a series of hyperbolic paraboloids which act as reinforcing beams. The buildings are separated into several independent zones that can be isolated thermally if not in use.
Articles: 1
Eight Tenths Garden – Shanghai, China
Building: Eight Tenths Garden
Location: Shanghai, China
Architect: Wutopia Lab
LDI: Shanghai DuJuan Engineering Design and Consultants Limited
Interior Design: ShangRuiYuan Building Design Consultants Limited
Landscape Design: Atelier VISION
Interior & Landscape Design Consultant: Yu Ting
Year: 2016
AE Interests:
Micro cultural complex (ie. chess, library, coffee shop, offices, venue, museum). Tribute to ancient literati garden with roof vegetation garden. Contemporary Chinese courtyards. Curtain fencing wall using corrugated board, glazed tile, perforated aluminum (pattern is the pixel style of the “thousands of miles mountains and rivers”), aluminum grille with vertical green. Galvanized frame from original sales center building.
Article: 1
Encore Mount Wutai Theater – Xinzhou City, China
Building: Encore Mount Wutai Theatre
Location: Xinzhou City, Shanxi Province, China
Architect: BIAD-ZXD ARCHITECTS
Lighting: BIAD Lighting Design Studio
Structure / Air Conditioning / Water Supply: BIAD-John Martin International Architectural Design Co,. Ltd
Construction: MCC Tiangong Group Co., Ltd
Stage Design: Zhejiang Joinus cultural technology Co.,Ltd
Year: 2014
AEInterests:
730-meter-long slowly unfolding “Sutra Folds”. Mix of materials such as stone, glass and stainless steel. Folds constructed out of wood to display detailed and traditional Chinese wooden architecture.
Article: 1
Grin Grin Park: Island City, Japan



[1, 2, 3]
Building: Grin Grin Park
Location: Island City (Hakata Bay, North of Fukuoka, Japan)
Architect: Toyo Ito
Construction: 2004-2005
AE Interest: Grin Grin Park lies on an artificial island and moves the architecture through the site. The design of the landscape melds together building and site with materials that compliment the hilly artificial island such as sloping wooden ramps and large glass walls.
Articles: [a1]
Hanamaruki Miso-Making Experience – Ina Nagano, Japan



[1, 2, 3]
Building: Hanamaruki Miso-Making Experience
Location: Ina Nagano near Shinjuku
Architect: Takenaka Corporation
Construction: 2017
AE Interest: Miso-Making hall is designed to provide the best possible tour of the factory and provide lectures and entertainment to guests who come to learn about the Hanamaruki Foods Inc. Miso process. The building is made of concrete folded-plate walls, and as such has no interior columns or beams.
The building won a 2017 International Architecture Award for corporate buildings.
Article: [a1]
Kanazawa Station – Kanazawa, Japan



Building: Kanazawa Station
Location: Kanazawa: Ishikawa Prefecture
Architect: Ryuzo Shirae
Design/Construction: 2005
AE Interest: Overhaul of a 120-year-old building; The Tzuzimi-mon Gate is composed of radially angled beams cut from Japanese Cypress. The Motenashi dome is important to protect travelers from frequent snow.
Articles: [a1], [a2]
Ginza Place – Tokyo, Japan
Building: Ginza Place
Location: Tokyo, Japan
Architect: Klein Dytham
Structural Engineer: Taisei Corporation
Lighting Design: Sirius Lighting Office
Contractor: Taisei Corporation
Owner/Developer: Tsuzureya Co., Ltd
AE interests:
Woven facade created from 5,000 aluminum panels, inspired by traditional Sukashibori latticework pattern, smallest at the base to create a more human scale at street level, gaps between panels responsive to seismic activity
Asakusa Culture Tourist Information Center – Tokyo, Japan
[1, 2, 3, 4]
Building: Asakusa Culture Tourist Information Center
Location: Tokyo, Japan
Architect: Kengo Kuma and Associates
Structural Engineer: Makino Structural Design
Electrical Engineer: Kankyo Engineering Inc.
Mechanical Engineer: Kankyo Engineering Inc.
Lighting Design: Izumi Okayasu Lighting Design
Facade Design: Ando Yoko Design
Owner/Developer: Taito City
Construction: August 2010 – February 2012
AE interests:
Described structurally as 8 stacked “one-storied houses”, wood design (modern approach to traditional Japanese facades), geometric structure formed from intersecting planes, asymmetric perspectives
Articles:
[1, 2, 3]
Toranomon Hills – Tokyo, Japan
[1, 2, 3, 4]
Building: Toranomon Hills
Location: Tokyo, Japan
Architect: Nikken Sekkei, Inc.
Structural Engineer: Nikken Sekkei, Inc.
MEP Engineer: Shinryo Corp.; Kyudenko Corp.; Sanken Setsubi Kogyo Co.
Contractor: Obayashi Corporation
Owner/Developer: Mori Building
Construction: 2011-2014
AE interests:
Tallest building in Tokyo (838 ft), steel frame structure with reinforced concrete, architectural structure elevated above surrounding roads, seismic damping earthquake design, biodiversity-conscious open spaces, mixed use hotel/residential/retail
Articles:
[1, 2, 3]
Golden Ridge: Upper Cloister – Beijing/Chengde
[1,2,3]
Building: Golden Ridge – Upper Cloister
Location: Foot of the Great Wall : Beijing/Chengde
Architect: Atelier Deshaus
Design/Construction: 2016-Present
AE Interest: Site selection and planning in accordance to neighboring cities, views, and the Great Wall of China. Influenced by terraced farms, a common agricultural practice in Asia. Physical representation of the Chinese symbol “舍” in Zen Hall, where the symbol is split up into roof, beams and columns, and a base. Influenced by Foguang Temple.
Article: [a1]
Suzhou Chapel – Suzhou Shi, China

Building: Suzhou Chapel
Location: Suzhou Shi, China
Architect: Neri & Hu
Completed: 2016
AE Interest: “Floating” white box. Folded metal skin which works with light to expose/hide interior. Subtly hides in nature, combining brick and light while also exposing an almost luminescent cube. Multi-faith space made to accommodate people of different beliefs. Layered design- perforated metal skin and sliced white wall underneath.
Article: [a1, a2]
Xiangmi Science Library – Shenzhen Shi, China

Building: Xiangmi Park Science Library
Location: Shenzhen Shi, China
Architect: MLA+
Landscape Design: ZEN Landscape
Completed: 2017
AE Interest: Merges traditional Chinese architecture and contemporary architecture. Tree top walkways. Lightweight materials. Integrated with nature. Made to feel as if you are walking through trees.
Article: [a1]
Sunwell Muse Kitasando – Tokyo, Japan
Building: Sunwell Muse Kitasando
Location: Tokyo, Japan
Architects: Takato Tamagami Architectural Design and Tsutomu Hasegawa of Be-Fun Design
Mechanical Engineer: ThreeQ
Structural Engineer: Kazunari Yoshida
Contractors: Toyoshima & Co, LTD and Moriya Co, LTD
Completion: 2008
AE interests:
Concrete block with organic wood cut outs, curved walls connect spaces, deliberate movement of people through the space, glass bridge
Articles:
[1]
Hoto Fudo – Yamanashi, Japan
Building: Hoto Fudo
Location: Yamanashi, Japan
Architect: Takeshi Hosaka Architects
Structural, environmental, and fire engineer: Arup
Completion: 2009
AE Interests: Plays with clouds/setting of Mt. Fuji, natural lighting, natural environmental systems; no AC, open doors, incorporates rain snow or fog, insulated sandwiched reinforced concrete shell stabilizes temperature and resists heavy snow and seismic loads, truss wall system fast tracked construction
Gifu Media Cosmos – Gifu, Japan
Building: ‘Minna No Mori’ Gifu Media Cosmos
Location: Gifu, Japan
Architect: Toyo Ito & Associates
Structural Engineering and Fire: Arup
Lighting: Lighting Planners Associates
Completion: 2015
AE Interests:
11 polyester hanging globes optimize air flow and natural lighting, cutting energy consumption by 40%. The curved wooden lattice roof was made by bending individual timber pieces on site.
Sugamo Shinkin Bank, Shimura Branch – Tokyo, Japan
Completed 2011
Itabashi City, Tokyo, Japan
Architectural Design: Emmanuelle Moureaux Architecture + Design
Structural Engineer: Orimoto Structural Engineers
MEP: Yamazaki Equipment Design
AE Interests:
Front facade covered with a stack of 12 colored layers. Three elliptical skylights in entrance of building.
Articles:
[1]
Dear Ginza Building- Tokyo, Japan
Dear Ginza Building
Chuo City, Tokyo, Japan
Completed 2013
Architectural Design: Amano Design Office
Collaborators: Atorie Oica, Azzuro Architect
Construction Firm: Kumagai Gumi Co.,Ltd.
AE Interests:
Consists of an aluminum facade that resembles a crumbled up wrapper. Lighting behind the metal facade that changes colors according to season.
Articles:
[1]
Roppongi Hills Mori Tower- Tokyo, Japan
Roppongi Hills Mori Tower
Completed 2003
Minato, Tokyo Japan
Architecture Design: Jon Jerde, Kohn Pedersen Fox Associates PC
Structural: Arup
AE Interests:
Sixth tallest building in Tokyo at 781 ft. Mostly used for office space, but it also includes retail stores, restaurants, and other attractions.
Articles:
[1]
The Shanghai Tower – Shanghai, China
[1]
Name: Shanghai Tower
Location: Shanghai, China
Cost: $2.2 billion
Architect: Jun Xia (Gensler)
Structural Engineer: Thornton Tomasetti
MEP Engineer: Consentini Associates
Main Contractor: Shanghai Construction Group
AE Interests: Incorporates a double glass skin to help conserve heat energy, wind turbines to produce power and a rainwater collection system. The shape of the building has also been designed to reduce wind loads on the structure, reducing the amount of building materials required. It currently is the tallest building in China and the second tallest in the world.
Updated 3/2020 by W.Zhang
Glenstone II Museum – Potomac, Maryland
Building: Glenstone II Museum
(new building, part of Glenstone Museum)
Address: 12100 Glen Rd. Potomac, MD 20854 [map]
Location: Potomac, Maryland
Architect: Thomas Phifer and Partners
Structural Engineer: Skidmore, Owings & Merrill (SOM)
Landscape Architect: PWP Landscape Architecture
General Contractor: DPR Construction and Hitt Contracting Inc.
Civil Engineering: VIKA, Inc.
Façade Design: R.A. Heintges & Associates
M/E/P/FP Engineering: Altieri Sebor Wieber LLC
Natural Lighting Design: ARUP
Sustainability: Buro Happold
204,000 total sf of new building which includes 50,000 sf of new gallery space.
Rectilinear galleries arranged in water-garden courtyards. Daylighting includes skylights, clerestories. Cast in place architectural concrete structure with some steel+conc. hybrid solutions.
“Clad in cast-concrete blocks, which measure approximately six feet long, one foot high and one foot deep (1.8 by 0.3 by 0.3 metres). These were left to cure outdoors, causing variations in their tone”
California Academy of Sciences – San Francisco, California


Building: California Academy of Sciences
Location: San Francisco, California
Architect: Renzo Piano, Stantec
Landscape Architecture: SWA Group
MEP Engineer: Arup
Structural Engineer: Arup
Living Roof: Rana Creek
Sustainability: Arup
General Contractor: Webcor
Completion: 2008
AE Interests: Platinum LEED; extreme sustainability design; natural ventilation; natural lighting; piazza skylight; planetarium domes; ground anchors; solar roof; living roof
Also written by Alec Gagnon August 30, 2009
Edited by GB January 22, 2025
Zalando Headquarters – Berlin, Germany

Building: Zalando Headquarters
Location: Berlin, Germany
Architect: HENN Architects
MEP Engineer: BuroHappold
Strucutural Engineer: BuroHappold
Completion: 2018
AE Interests: Reduction of carbon footprints by limiting finishes; exposed structural elements, fair-faced reinforced concrete; DGNB Gold certification; sustainability design
Vidoes: [1]
One Melbourne Quarter – Melbourne, Australia

Building: One Melbourne Quarter
Location: Melbourne, Australia
Architect: Denton Corker Marshall
Structural Engineer: Arup
Completion: 2018
AE Interests: multipurpose building; elevated park; sustainability design; 6 star green star rating; outdoor extension of interior workplace; concrete design
National Bank of Kuwait – Kuwait City, Kuwait
[1]
Building: National Bank of Kuwait
Location: Kuwait City, Kuwait
Architect: Foster + Partners
Structural Engineer: Buro Happold
Lighting Engineers: Claude Engle
Completion: 2018
AE Interests: structural innovation with a highly efficient passive form, tower’s cylindrical form opens like a shell to the north to avoid solar gain, southern façade is shaded by a series of concrete fins providing structural support also, achieved LEED Gold rating in temperatures that can rise to 45°C
Kuwait International Airport – Sabhan, Kuwait
[1]
Building: Kuwait International Airport
Location: Sabhan, Kuwait
Architect: Foster + Partners
Collaborating Architect: Gulf Consult
Structural Engineer: Arup
Completion: 2020
AE Interests: glazed openings that filter daylight while deflecting direct solar radiation, large expanse of roof-mounted photovoltaic panels, each façade spans 1.2 kilometers, extends from a 25-meter-high central space, tapering concrete columns, organic forms draw inspiration from the shape and movement of Kuwait’s traditional dhow sailing boats
Apple Dubai Mall – Dubai, UAE
[1]
Building: Apple Dubai Mall
Location: Dubai, UAE
Architect:Foster + Partners
Collaborating Architect: WSP
Structural Engineer: Foster + Partners, WSP
Completion: 2017
AE Interests: celebration of the sun, using the abundant daylight to create a special ambiance within, carbon-fiber shutters fold around the oriel window, movement of these “solar wings” echo’s the motion of an eagle flapping its wings, edges give customers a place to admire the view
Rory Meyers Children’s Adventure Garden
Building: Rory Meyers Children’s Adventure Garden inside Dallas Arboretum
Location: Dallas, Texas, United States of America
Architect: Dattner Architects
Structural Design: Datum Engineers (Texas Sky Walk and Tree house netting)
Landscape Design: MKW
Lighting Design: Horton Lees Brogdan
Exhibit Design: VSRltd
Completed: 2013, 7-acre expansion
Building Area: 9600 sqft
AE Interests: Sky Walk is a 200 ft long, 20 ft high steel supported walkway over looking the gardens; Buildings used high-mass concrete construction as well as in ground construction to lower energy costs of the buildings; STEM education centers with 17 integrated outdoor learning spaces; Sustainable, low maintenance, durable, recycled materials, green roofs, rainwater collection, photovoltaic , and daylight sensitive construction
Articles [1]
Sendai Mediatheque- Sendai-shi, Japan
Images [1], [2], [3], [4], [5], [6]
Building: Sendai Mediatheque
Location: Sendai-shi, Japan
Architect: Toyo Ito
Structure: Sasaki Structural Consultants
Mechanical: Es Associates, Sogo Consultants, Otaki E&M Consultants
Construction: 1997- 2000
AE Interests: 13 independent steel-ribbed shafts (tubular columns) constructed with steel-tube truss system; steel-ribbed “honeycomb” slabs of sandwiched steel-plate construction; basement features seismic energy-absorbing mechanisms; the structural tubes also act as light wells, connectors for cables and wiring, elevator shafts and stairwells; structural glass to reinforce the curtain wall
Videos [1]
Case Study House 22
Building: Satahl House/ Case Study House 22
Location: Los Angeles, California, United States of America
Architect: Pierre Koenig
Completed: 1959
AE Interests: glass, steel, and concrete construction; steep sloped lot; architecture was designed to be “one large viewing box”
Videos [1]
Ford Foundation Headquarters – New York, New York
Building: Ford Foundation Headquarters
Location: New York, New York
Architect: Kevin Roche, John Dinkeloo and Associates
Structural Engineer: Kevin Roche, John Dinkeloo and Associates
Landscape Architect: Dan Kiley
Completed: 1968
AE Interests: The offices only take up a portion of the space on site, the remainder is used as an indoor garden atrium. Structure is a hybrid of concrete and weathered steel, with steel beams spanning 84 feet. Concrete is clad in granite, so the colors of the stone and reddish-brown steel blend in with the natural colors of the garden. Structural design was influenced by highway and bridge construction techniques, where concrete is used as a bearing element to bring forces into the ground and steel is used as a spanning element. Also one of the first office buildings to combine indoor public spaces and community atmosphere with private individual office spaces. This is achieved by orienting the office levels in a step-back formation resembling the letter “C”. Occupants can see each other across the atrium, but still have the privacy of an individual office.
Baker House (MIT) – Cambridge, Massachusetts
Building: Baker House
Location: Massachusetts Institute of Technology, Cambridge, Massachusetts
Architect: Alvar Aalto
Renovation Architect: Perry Dean Rogers Architects
Completed: 1948
AE Interests: Site is located along Charles River, the curved shape gives a unique view of the river for each student. The curve also maximizes exposure to southern sunlight for each room, minimizing heating loads and electric costs. Plan is oriented around a single corridor, all rooms are along the south edge with the stair system running on the north side of the building. Structural columns in the lower sections give way to timber-clad framing in the higher sections to form a relationship with the trees around the building.
Riviera TwinStar Towers – Shanghai, China
Building: Riviera TwinStar Towers
Location: Shanghai, China
Architect: Arquitectonica
Structural Engineer: Arup
MEP Engineer: J. Roger Preston Limited
Completed: 2011
AE Interests: 708 feet tall (216 meters), both towers feature curved facades. Serves as headquarters for two separate banks, so symmetry and order was needed in the design. Inner curves are lit at night to emphasize shape and scale. Features a removable slab to accommodate needs of the tenant. Utilizes high performance Low-E glass with solar control coating. All facade materials are recyclable. Concrete frame system, inclined columns in curved sections, uses steel-reinforced columns in lower sections of the tower to minimize column size and maximize floor space. Located in historical shipyard site, the shape of the towers forms a gateway towards the river in the shape of a ship’s hull.
American Copper Buildings – New York, New York
Building: American Copper Buildings – East and West Towers
Location: New York, New York
Architect: SHoP Architects
Structural Engineer: WSP Cantor Seinuk
MEP Engineer: Buro Happold
Main Contractor: JDS Construction Group
Owner/Developer: JDS Development Group
Acoustics: Cerami and Associates
Civil: AKRF
Façade: Buro Happold
Landscape: Scape/Landscape Architecture PLLC
Lighting: Buro Happold
Construction: 2013-2017
AE Interests: North and South façades are clad in copper which will patina over time; floating sky-bridge that connects the East and West Tower together at the hip; it’s suspended approximately 300 feet in the air and is 100 feet long and 3 stories high; it contains several amenities, including a 75 foot lap pool, spa, and Turkish bath; the units, 761 total, vary in floorplan due to the buildings’ unique shapes; was the winner of Best Tall Building in Americas CTBUH award
Articles:[1, 2, 3, 4, 5]
Ed:GB
gb3
Centre Le Corbusier (Heidi Weber House) – Zürich, Switzerland
Building: Centre Le Corbusier (a.k.a. Heidi Weber House/Museum, Pavillion Le Corbusier)
Location: Zürich, Switzerland
Architect: Le Corbusier
Construction: 1965-1967
AE Interests: the two main components of the building are a floating parasol roof-structure and a two-story rectilinear volume atop a concrete pavilion floor; modular steel frame cubes about 7.5 cubic feet are stacked to reach two stories; colorful enamel panels serve as walls; the entire structure is prefabricated; as stated in a very informative article (link “1” below):
‘The nature of these prefabricated cubes make for a completely open ground plan that can be divided at will, a convenience well attuned for a hybrid exhibition/dwelling space. In this way, “Le Corbusier used standardized parts to create individual forms instead of uniform repetitions,” a technique Jorn Ützon famously explored.’
Tugendhat House – Brno, Czech Republic
Building: Tugendhat House
Location: Brno, Czech Republic
Architect: Mies van der Rohe
Construction: 1928-1930
AE Interests: structure is supported by large shear wall; the plastered structure utilizes a steel skeleton, reinforced concrete ceilings, and brick masonry; subtle supporting columns are anchored in concrete bases and lead through the masonry and partially through the spaces of all the floors; two large windows could be retracted via electric motors–an innovative technology at the time; distribution system for drinking and utility water as well as an air system, involving a combination of heating, cooling, and humidification; continual space with a connection to the exterior of the structure
“Large spaces provide freedom. Space has a completely special calm in its rhythm which cannot be provided by a closed room.” – Grete Tugendhat
Articles: [1]
Säynätsalo Town Hall – Säynätsalo, Finland
Building: Säynätsalo Town Hall
Location: Säynätsalo, Finland
Architect: Alvar Aalto
Construction: 1952
AE Interests: The town hall is a study in opposition: elements of classicism and the monumental blended with modernity and intimacy to form a cohesive new center-point for the community. Spider-like wooden trusses. Hollow wooden steps filled with dirt and grass. Built entirely of brick, including the loadbearing internal walls.
Original AEWM entry by Amanda Higbie
Hillside Terrace Complex I-VI – Tokyo, Japan
Building: Hillside Terrace Complex I-VI
Location: Tokyo, Japan
Architect: Fumihiko Maki (Maki & Associates)
Structural System:Reinforced Concrete
Structural Engineer:(ABC) Yamaki Structural Engineers,(DEFG) Aoki Structural Engineers
Mechanical / Electrical Engineer:(ABC) Sakurai Consultants, (DEFG) Sogo Consultants
Completion: 1967-1992
AE Interests: A result of spatial and architectural means – scale, transparency – and the programmatic development of public life
Articles: [1]
Tianjin Binhai Library – Tianjin, China
Building: Tianjin Binhai Library
Location: Tianjin, China
Architect: MVRDV
Co-Architect: Tianjin Urban Planning and Design Institute (TUPDI)
Lighting Designer: Huayi Jianyuan lighting design
Structural Engineer: Sanjiang Steel Structure Design
Interior Architect: TADI interior architects
Completion: 2017
AE Interests: Part of German architects GMP’s 120,000m2 masterplan, which aims to accentuate the characteristics of the surrounding districts. A junction point for the CBD, old town, residential districts, commercial areas and the government quarter.
Art Pavilion in Videbaek – Videbaek, Denmark
Building: Art Pavilion in Videbaek
Location: Videbaek, Denmark
Architect: Henning Larsen
Structural Engineer: Jørgen Holm
Construction: 2011- 2012
AE Interests: two seemingly floating plates connected by diagonal members, curtain wall is pulled back from the exterior structure, reminiscent of Japanese tea house as it is situated between a park and a lake, interior illuminated by skylights to allow for flexibility in display arrangements
Articles: [1]
Mill Owners’ Association Building – Ahmedabad, India
Building: Mill Owners’ Association Building
Location: Ahmedabad, India
Architect: Le Corbusier
Completion: 1954
AE Interests: represents Le Corbusier’s proposal for modern Indian architecture, use of brises soleil to prevent sun from reach facade, oriented to allow breeze from river to passively cool building, combines Le Corbusier’s visions of rigidity and curvilinear forms, use of deep perforated walls and exposed concrete
Villa Müller – Prague, Czech Republic
Building: Villa Müller
Location: Prague, Czech Republic
Architect: Adolf Loos
Associate Architect: Karel Lhota
Contractor: Podnikatelství Staveb (Entrepreneurship Buildings)
Landscape Architects: Camillo Schneider, Karl Förster, and Hermann Mattern
Completion: 1930
AE Interests: harmony between modern Functionalism and the classic English style, built on sloping terrain that gives views across the valley of the Vltava with Trója Château, access by staircase that allows visitors to interact with the site, idea that structure is for inhabitants not viewers, application of Raumplan conception of buildings, each room is distinctively finished and has different character, interior colors emphasize use of specific space
Fletcher Hotel – Amsterdam, Netherlands
Building: Fletcher Hotel
Location: Amsterdam, Netherlands
Architects: Benthem Crouwel Architects
Structural Engineer: Van Rossum
Facade Engineer: Octatube
Fire Suppression: Mariof
Building Physics: moBius consult
Contractor: Strukton
Interior Design: Robert Kolenik
Completion: 2013
AE interests: In order to reduce the total weight of the building, the partitions between rooms were fit with light structural steel trusses. The hotel was built in a very noisy area, right next to the A2, which is one of the busiest highways, the glass facade that hangs on the outside also creates a lot of noise. To fix these problems, they designed a glass reinforced polyester (GRP) interior facade that blocks out all noise and keeps the heat load from the sun low.
Articles [1, 2]
Stockholm Public Library – Stockholm, Sweden
Building: Stockholm Public Library
Location: Stockholm, Sweden
Architect: Gunnar Asplund
Completion: 1928
AE Interest: Made of Plastered brick walls. Floors and the roof are made of iron girders and concrete.
Castelvecchio Museum -Verona, Italy
Building: Castelvecchio Museum
Location: Verona, Italy
Architect: Carlo Scarpa
Completion: 1964
AE Interest: Castelvecchio was originally built in 1354. Scarpa’s restoration combined the original style with reinforced concrete and steel.
Huaku Sky Garden – Taipei, Taiwan
Building: Huaku Sky Garden
Location: Taipei, Taiwan
Architect: WOHA
Completion: 2017
Local Architect: C.C. Jen Architects and Associates
Structural Engineer: NEW STRUCTURE GROUP
Construction: Pin Hsing Construction
Lighting Design: chroma33 – architectural lighting design
AE Interests: 38-story residential building, designed to maximize cross-ventilation through interlocking form, the symmetrical structural screen provides earthquake-resistance, large external columns and bearing walls allow for no interior columns, ornamental facade is inspired by the rectangular asymmetry of traditional Chinese joinery, each balcony has a recessed garden
Articles: [1, 2, 3]
Casa del Fascio – Como, Italy
Building: Casa del Fascio
Location: Como, Italy
Architect: Giuseppe Terragni
Completion: 1936
AE Interests: local headquarters of the Fascist party in Como, early example of modernism, strong principles of void and volume, proportion, and transparency, perfect square in plan (110 ft) and half cube in shape, each of the four facades in unique, constructed of only reinforced concrete, marble and glass
“…fascism, a house of glass into which everyone can peer giving rise to this wholly faithful interpretation: no encumbrance, no barrier, no obstacle between the political hierarchies and the people” – Mussolini
Gateway Arch – St. Louis, Missouri, U.S.
Building: Gateway Arch
Location: St. Louis, Missouri, U.S.
Completed: 1965
Architect: Eero Saarinen
Structural Engineer: Fred Severud
Engineer: Hannskarl Bandel
Construction: MacDonald Construction Co
AE Interests: The world’s tallest arch (630 ft). The arch is composed of stainless steel skin covering two carbon-steel walls with reinforced concrete in the center. Up 300 ft, only steel is used. The arch is earthquake-resistant and designed to sway up to 18 inches in either direction. The triangular shape varies in thickness from 54 ft at the bottom to 17 ft at the top. Includes an observation deck by access from a passenger train.
Articles: [1, 2, 3]
Villa Mairea – Noormarkku, Finland
Building: Villa Mairea
Architect: Alvar Aalto
Location: Noormarkku, Finland
Design/Construction: 1937 – 1939
AE Interests: The Villa Mairea, built as a country house for Harry and Maire Gullichsen by Alvar Aalto in 1939, is a significant dwelling that marks Aalto’s transition from traditional to modern architecture. It is composed of a mix of materials that “morph” and change throughout the structure. Aalto wanted to blend the interior and the exterior, he used a lot of differently sized columns that mimic the birch tree forest around the house, “to avoid the artificial architectural patterns in architecture.” The house is slightly L-shaped, which makes a public and private side for the residents. The final design is heavily inspired by Frank Lloyd Wright’s Fallingwater.
Atelier Culinario – Rio Grande do Sul, Brazil
Building: Atelier Culinario
Location: Porto Alegre, Rio Grande do Sul, Brazil
Architect: W4 Arquitetura Criativa (The architects of W4 Arquitetura are 3 women who share the same dreams and have a creative entrepreneurial spirit. The W represents woman, work, and wonderful.)
Size: 35.0 m2
Year: 2018
AE Interests: This remodeling was part of a larger exhibition called Casacor/Rio Grande So Sul, an exhibition of architecture, interior design, and landscaping. The kitchen has a warehouse character and reuses a lot of the materials to be sustainable. The iron rebar mesh wall is reused from the construction phase of the project. The vertical garden wall is made with bags of recycled fabric from PET bottles. Another sustainable element is a kitchen garden that provides raw material for the preparation of the chef’s dishes.
Video: [1]
Articles: [1]
Sesc Pompéia – São Paulo, Brazil
Building: Sesc Pompéia
Location: São Paulo, Brazil
Architect: Lina Bo Bardi
Construction: 1977-1986
AE Interests: This is a major renovation of an existing factory into a community center, with an addition of 2 vertical buildings attached by walkways. A “Sesc” is a facility for leisure, education, sports, and cultural activities. A major element on the outside of the buildings are the red screened irregular windows, which the architect relates to “Spanish civil war hole.” The water tower is cast in place concrete using an “oozing joint” technique that you can see in the finished façade. The original drum factory was one of the first examples of reinforced concrete being used. There are eight pre-stressed concrete walkways that span gaps up to 25 meters. Bardi also wanted an inviting “street face” to draw the public in to use the space.
111 W 57th Street – New York, New York
Building: 111 West 57th Street
Location: New York, New York
Architect: SHoP Architects
Structural Engineer: WSP | Parsons Brinckerhoff
MEP Engineer: Jaros, Baum & Bolles
Civil Engineer: AKRF
Façade Engineer: BuroHappold Engineering
AEInterest: curtain wall facade, historic structure preservation, needle tower, high strength concrete, dampening technology, lateral stability via tuned mass damper, concrete core, shear walls, outriggers, and belt systems, tall freestanding crane, width-to-height ratio of 1:24, 82 floors, 1427 feet tall
Videos: [1]
gb3
Municipal Orphanage – Amsterdam, Holland
Building: Municipal Orphanage
Location: Amsterdam, Holland
Architect: Aldo Van Eyck
Completed: 1960
AEInterest: connected indoor and outdoor spaces, geometric shapes, precast reinforced concrete architraves, skylights, nonhierarchical development, regular geometrical order, biomorphic cupolas
Videos: [1]
Couvent Sainte-Marie De La Tourette – Lyon, France


[1, 2, 3]
Building: Couvent Sainte-Marie De La Tourette
Location: Lyon, France
Type: Religious
Material: Steel framed reinforced concrete
Architect: Le Corbusier
Building Area: 16,500 sf.ft
Completed: 1960
AEInterests: modernism, music inspiration, exposed painted ducts, pilotis, grass rooftops, unulating glazed panels, light cannons
Museo de las Ciencias Principe Felipe – Valencia, Spain

[1, 2, 3]
Building Name: Museo de las Ciencias Principe Felipe (Prince Felipe Museum of Science)
Location: Valencia, Spain
Construction Dates: 1995-2000
Architect: Santiago Calatrava
Structural Engineer: Santiago Calatrava
Construction Firm/Contractors: Fomento de Construcciones y Contratas and Necso
AE Interests: One of five main buildings within the City of Arts and Sciences, complex geometry and repetition of structure, influences of nature (resembles the skeleton of a whale), largest exhibition space in Spain
Larkin Company Administration Building – Buffalo, New York, USA

[1, 2, 3, 4]
Building Name: Larkin Company Administration Building
Location: Buffalo, New York
Construction Dates: 1902-1906
Building Destroyed: 1950
Architect: Frank Lloyd Wright
Ornamentation Sculptor: Richard Bock
AE Interests: 76 foot tall skylit courtyard, egyptian-like piers, steel-frame structure covered with red brick and pink mortar to maintain monolithic style, glass ceiling with efficient skylights, innovations in air conditioning (one of the first air conditioned office building in the world), stained glass windows, built-in furniture, and suspended toilets.
Videos: [1]
Phillips Exeter Academy Library – Exeter, New Hampshire, USA

[1, 2, 3, 4]
Building Name: Phillips Exeter Academy Library
Location: Exeter, New Hampshire
Construction Date: 1965-1971
Architect: Louis Kahn
Structural Engineer: Keast and Hood Company
Mechanical/Electrical Engineers: Dubin-Mindell-Bloome Associates
General Contractors: H.P. Cummings Construction Company
AE Interests: Largest secondary school library in the world, constructed in three concentric areas: outer ring (load bearing brick), middle ring (reinforced concrete supporting book stacks), and inner ring (dramatic atrium with large circular openings in its walls revealing floors of book stacks). Central atrium is 52 feet tall and 32 feet wide following “ideal architecture” golden ratio.
Articles: [1]
National Congress – Brasilia, Brazil
Building: National Congress
Location: Brasilia, Brazil
Architect: Oscar Niemeyer
Construction: 1960
AE Interests: 27 stories, 5 sided in plan with 2 angled facades coming to a point between the towers, the towers are also connected by a 3 story bridge, the white dome covers the senate chamber and the inverted dome covers the chamber of deputies.
Villa Savoye – Poissy, France
Building: Villa Savoye
Location: Poissy, France
Architects: Le Corbusier and Pierre Jeanneret
Completed: 1931
AE Interests: horizontal ribbon windows, rooftop garden, concrete, glass, free facade, free plan, pilotis elevate the building.
The Museum of Islamic Art – Doha, Qatar
Building: The Museum of Islamic Art
Location: Doha, Qatar
Architect: IM Pei
Structural Engineers: LERA Consulting Structural Engineers
Completed: 2008
AE Interests: cream colored limestone, geometric in form, domed atrium, oculus at the top of the atrium reflects patterns of light, the only major window stands 45 meters tall and gives a view of the Gulf and West Bay area
Stade De Soccer de Montréal – Montreal, QB, Canada
Building: Stade De Soccer de Montréal
Location: Montreal, QB, Canada
Date: 2015
Architect: Saucier + Perrotte architects, HCMA Architecture + Design
Structural: NCK inc.
MEP System: Bouthillette Parizeau
Wood Structure: Nordic Structures
Landscape: WAA Inc
AE Interests: 2014 Progressive Architecture Award from ARCHITECT, wood design, meant to be a cultural center of the city, 226-foot-long glue and cross-lamintaed timber box beams
Articles: [1]
Glasgow School of Art – Glasgow, Scotland
Michaelerplatz House (Looshaus) – Vienna, Austria
Building: Michaelerplatz House (Looshaus)
Location: Vienna, Austria
Completed: 1911
Architect: Adolf Loos
Construction: Pittel + Brausewetter
AE Interests: controversial for being too plain, known as the ‘house without eyebrows’, plain outside but extravagant interior
Articles: [1,2,3]
Antorcha Bicentenario – Leon, Mexico
[1,2,3]
Building: Antorcha Bicentenario
Location: Leon , Mexico (state of Guanajato)
Built: 2010
Architect: Jesús Hernández Martínez and José Pareja Gómez José
Structural Design: Jorge Lucio Lerma Carmona
AE Interests: Located at the main entrance to the city of Leon(1).
The monument consists in a 10-meter tall concrete volume offering lateral support, followed by a 35-meter steel structure made of one hundred rings making it 45 meters in total. With 100 voids that happen from shadows. Marked by 200 scars on the surface which show the journey to independence.
edited Nov’18:GB
The Frost Tower – San Antonio, Texas
Building: The Frost Tower
Location: San Antonio, Texas
Date: 2019
Architect: Pelli Clarke Pelli Architects
Construction: Clark Construction
AE Interest: Post-tensioned cast-in-place concrete construction. Unique foot print for each floor due to twisting geometry. The “Crown” a steel truss structure supporting the glass curtain wall facade. Low emitting, recycled, and regional materials are among a few of the design aspects to achieve LEED Silver certification.
King Abdullah Petroleum Studies and Research Centre – Riyadh, Saudi Arabia
Building Name: King Abdullah Petroleum Studies and Research Centre
Location: Riyadh, Saudi Arabia
Architect: Zaha Hadid
Structural Engineer: Arup
Lighting Design: OVI
Completed: 2017
AE Interests: LEED Platinum Certified, Hexagonal prismatic honeycomb structures use the least material to create a lattice of cells within a given volume, specific arrangement and form contributes to softening the strong light and heat
Articles [1]
Rudolph Hall -New Haven, Connecticut
Building Name: Rudolph Hall
Location: New Haven, Connecticut
Architect: Paul Rudolph, Gwathmey Siegel & Associates Architects
Structural Engineer: Severud Associates Consulting Engineers
Construction: Turner Construction Co.
Completion: 1963 (Initial), 2008 (Renovations)
AE Interests: Early example of brutalist architecture in the US, uses cast in place bush hammered concrete, LEED Gold certified
Neue Staatsgalerie -Stuttgart, Germany
Building Name: Neue Staatsgalerie
Location: Stuttgart, Germany
Architect: James Stirling
Structural Engineers: Arup and Boll Partner
Completion: 1983
AE Interests: Epitomizes the first stage of Post-Modernism by combining classical museum elements (sandstone) with industrial materials (vibrantly colored steel) to unite the monumental and informal, incorporates the slope of the landscape into the design, prominent open top rotunda
Articles: [1]
111 West 57th Street – New York City, New York
[1, 2, 3, 4, 5 6 ]
Building: 111 West 57th Street – New York City, New York
Architect: SHoP Architects
Structural Engineer: WSP
Construction/Developer: JDS Development Group + Property Markets Group
Completion: 2019
AEInterests: 1:24 slenderness ratio. 82 floors. 435m tall (1427 feet). Lateral stability via tuned mass damper, concrete core, shear walls, outrigger and belt systems.
Articles: 1,
Video: 1 (architect & engineer)
Silvian Marcus, director of building structures at WSP
gb3
.
Office Südwestmetall – Esslingen, Germany
Building: Office Südwestmetall
Location: Esslingen, Germany
Date: 2016
Architect: fritzen 28
Climate Engineer: Transsolar
HVAC: Ingenieurbüro Joos
Contractor: Transplan (Technik)
AE Interest: Innovative heating system using an open loop heat pump. The heat pump uses groundwater typically at 53.6 F flowing through the slabs of the structure. The exhaust system is located in the parking garage under the structure to efficiently heat with out consuming additional heat.
Elobau E+ Production Building -Probstzella, Germany
Building: Elobau E+ Production Building
Location: Probstzella, Germany
Date: 2016
Architect: f64 Architeckten
Climate Engineer: Transsolar
Structural Engineer: Merz Kley Partner
HVAC: Climaconcept
AE Interest: All energy is generated on site with photo-voltaic panels on the roof and at grade adjacent to the structure. With the help of large wood trusses, the interior is column free.
Articles: [1]
Zaryadye Park – Moscow, Russia
Building: Zaryadye Park
Location: Moscow, Russia
Date: 2017
Architect: DSR Diller Scofidio + Renfro
Climate Engineer : Transsolar
Structural Engineer: BuroHappold Engineering
Landscape Architect: Hargreaves
AE Interest: Transparent photo voltaic elements with in grid shell structure. The structure creates wet and dry, hot and cold micro-climate conditions.
Arch Daily Building of the year 2018
AEG Turbine Factory – Berlin, Germany
Building: AEG Turbine Factory
Location: Berlin, Germany
Architect: Peter Behrens
Engineer: Karl Bernhard
Completion: 1909
AE Interests: Self-taught architect Behrens created the large, open aired rectangular floor plan with the factory’s assembly stations in mind. The factory is held up by 22 steel mainframes wrapped in cast-in-place concrete and floor to ceiling walls of glass, allowing the industrial structure access to the outdoor light . “A veritable cathedral of industry.”
Yogi Treehouse – Austin, Texas
Building: Yoki Treehouse
Location: Austin, Texas
Architect: Will Beilharz
Construction: Artistree
Completion: 2018
AE Interests: Perched 25 feet above ground, the Yoki Treehouse is the first luxury treehouse resort that has come to Austin, Texas. Steel open webbed joists balance the structure between two massive trees. The treehouse itself is constructed of sustainable woods such as elm and cypress wood and wrapped in metal siding to call upon the traditional rustic Texan style. The interior, however, is designed in a clean, modern way. The property is split up into two constructions, the living areas in the trees and the bathhouse that sits on solid ground, connected by a 60 foot suspension bridge.
Igualada Cemetery – Barcelona, Spain
Building: Igualada Cemetery
Location: Barcelona, Spain
Architect: Enric Miralles
Construction Start: 1984
Building Completion: 1994
AE Interests: Built in an industrial area where most of the land had been dug out for quarries, Miralles tucked the tiered layout into the stone hills. The cemetery was built of reinforced concrete to reflect the industrial surroundings. There are many examples where the reinforcements are exposed, creating bold, rusting lines repeating throughout the form. The cemetery also houses a chapel and monastery that have yet to be completed.
Lovell Beach House – Newport Beach, California
Building: Lovell Beach House
Location: Newport Beach, California
Architect: Rudolf Schindler
Completion: 1926
AE Interests: house is lifted and cradled in 5 parallel poured-in-place concrete frames in the shape of figure 8’s; protected from earthquakes – lightweight walls suspended from the structure to move independently during tremors; curtain wall windows on the east/south sides facing the ocean; healthy lifestyle arrangement – living quarters are on the north side to maximize fresh air circulation; bedrooms have windows for cross ventilation, so no A/C needed.
Video: [1]
S.C. Johnson & Son Headquarters – Racine, Wisconsin
Building: S.C. Johnson & Son Headquarters
Location: Racine, Wisconsin
Architect: Frank Lloyd Wright
Structural Engineers: Wesley Peters and Mendel Glickman
Main Building Completion: 1939
Research Tower Completion: 1951
AE Interests: 43 miles of glass Pyrex tubing forms windows; 200 special shapes of Cherokee Red brick used for interior/exterior walls; the columns in the Great Workroom, referred to as “lily pads;” columns are 9 inches in diameter at the base, 18.5 ft in diameter at the top; the research tower is supported by a central core that extends 54 feet into the ground.
SFO Airport Air Traffic Control Tower – San Francisco, California
Building: SFO Airport Air Traffic Control Tower
Location: San Francisco, California
Architects: HNTB Architecture and Fentress Architects
Structural Engineer: Walter P. Moore
General Contractor: Hensel Phelps
Design Team: Joe Grogan, Paul Kim, Alejandro Ogata, Robert Steel
Completion: 2015
AE Interests: Sleek and elegant facade – sweeping torch form and expose of the tower core with black lit glass; Tower placement – adjacent to drivers and pedestrians; Aluminum skin conceals 75,000 lbs of steel to resist wind/earthquakes; cast-in-place concrete core 30 inches thick; 221 feet tall





































































































































































































































































leave a comment